Book a Property Valuation

Foley Road, Newent

Guide Price £275,000

Semi-Detached House

Overview

4 Bedroom Semi-Detached House for sale in Foley Road, Newent

Key Features:

  • Extended Three / Four Bedroom Semi Detached House
  • Generous Corner Plot, NO ONWARD CHAIN
  • Converted Garage
  • Off Road Parking
  • Walking Distance to Local Amenities
  • EPC Rating - D, Council Tax - B , Freehold

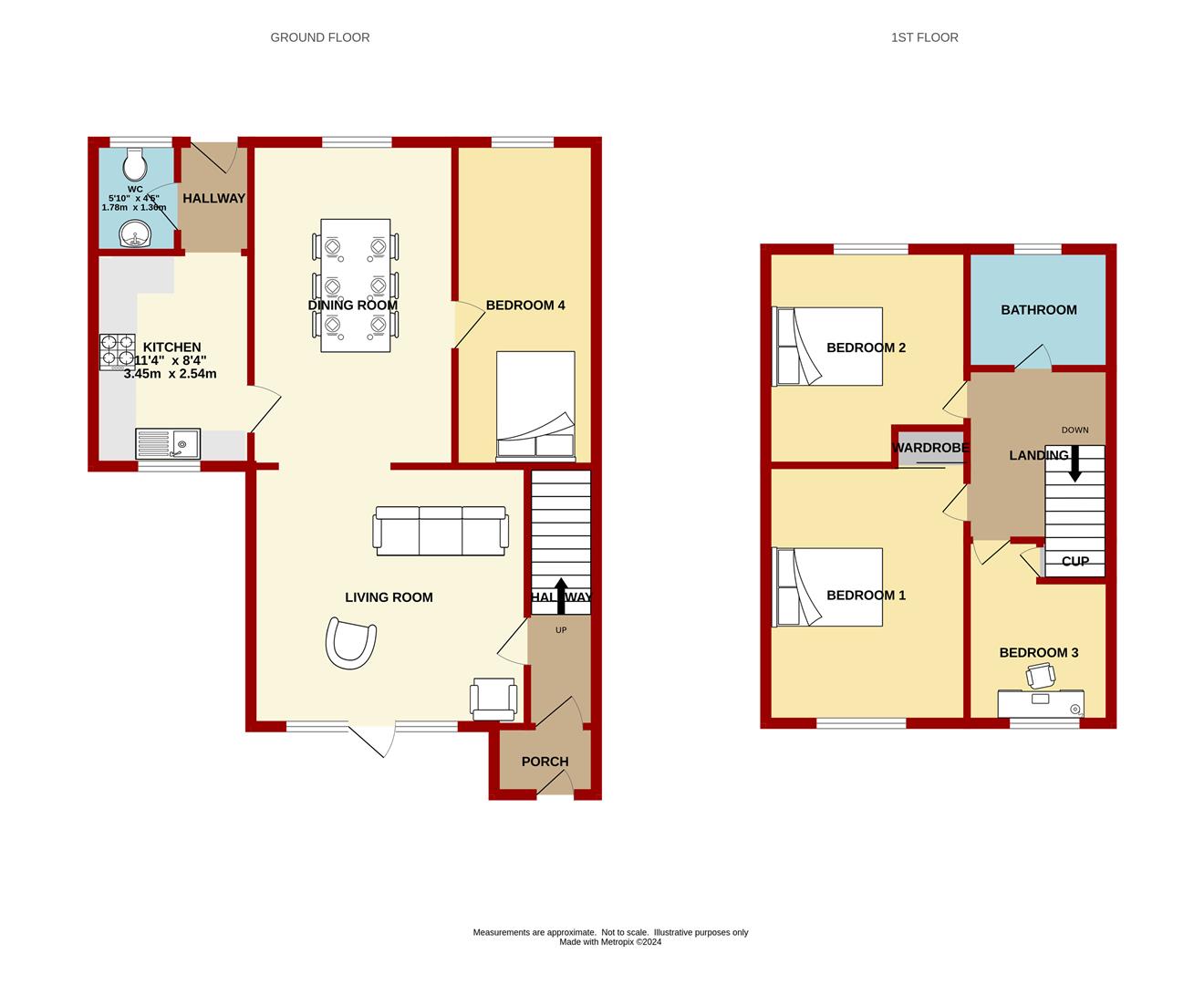
An EXTENDED THREE / FOUR BEDROOM SEMI-DETACHED FAMILY HOME set in a GENEROUS CORNER PLOT with CONVERTED GARAGE, OFF ROAD PARKING, all within WALKING DISTANCE TO LOCAL AMENITIES, all being offered with NO ONWARD CHAIN.

Enter the property via UPVC double glazed front door into:

Entrance Porch - Front aspect frosted window. Through further glazed wooden door into:

Entrance Hall - Stairs to the first floor, thermostat control, door to:

Lounge - 4.50m x 4.17m (14'9 x 13'8) - New carpet, TV point, single radiator, two front aspect windows, door to patio and gardens. Archway leads to:

Dining Room - 5.23m x 2.95m (17'2 x 9'8) - New carpet, single radiator, rear aspect window. Door to:

Kitchen - 3.43m x 2.54m (11'3 x 8'4) - Range of base and wall mounted units with laminated worktops and tiled splashbacks, integrated electric oven with four ring gas hob and extractor fan over, plumbing for washing machine, single drainer stainless steel sink unit with mixer tap, space for freestanding fridge / freezer, front aspect window. Opening through to:

Rear Hallway - UPVC double glazed back door, shoe and coat storage area. Door to:

Cloakroom - 1.75m x 1.12m (5'9 x 3'8) - Built-in WC, worktop and storage, wash hand basin, single radiator, rear aspect window.

Bedroom 4 / Study - 5.00m x 2.24m (16'5 x 7'4) - New carpet, front aspect window.

FROM THE ENTRANCE HALL, STAIRS LEAD TO THE FIRST FLOOR.

Landing - Access to roof space.

Bedroom 1 - 4.04m x 3.51m (13'3 x 11'6) - Additional built-in double wardrobe accessed via sliding doors, new carpet, single radiator, front aspect window with far reaching elevated views.

Bedroom 2 - 3.51m x 3.45m into wardrobe recess (11'6 x 11'4 in - New carpet, single radiator, rear aspect window.

Bedroom 3 - 3.05m x 2.24m (10'0 x 7'4) - New carpet, single radiator, over stairs storage cupboard, front aspect window with elevated views.

Bathroom - Modern three piece suite comprising panelled bath with mixer tap, Triton electric shower over, WC, vanity wash hand basin with mixer tap and cupboards below, laminate flooring, chrome heated towel rail, tiled splashbacks, shaver point, spotlighting, rear aspect frosted window.

Outside - To the rear, a driveway provides off road parking with rear courtyard gardens with patio seating area. The corner plot has a further patio area to the side, garden shed and gate into the main front gardens which are laid to lawn with mature cherry tree, borders planted with shrubs, trees and bushes, outside water tap, all enclosed by mature hedging, offering complete privacy.

Services - Mains water, electricity, gas and drainage.

Mobile Phone Coverage / Broadband Availability - It is down to each individual purchaser to make their own enquiries. However, we have provided a useful link via Rightmove and Zoopla to assist you with the latest information. In Rightmove, this information can be found under the brochures section, see "Property and Area Information" link. In Zoopla, this information can be found via the Additional Links section, see "Property and Area Information" link.

Water Rates - Severn Trent - to be confirmed.

Local Authority - Council Tax Band: B
Forest of Dean District Council, Council Offices, High Street, Coleford, Glos. GL16 8HG.

Tenure - Freehold.

Viewing - Strictly through the Owners Selling Agent, Steve Gooch, who will be delighted to escort interested applicants to view if required. Office Opening Hours 8.30am - 7.00pm Monday to Friday, 9.00am - 5.30pm Saturday.

Directions - From our Newent Office, proceed out of the High Street turning right into Onslow Road. Proceed along, taking the first right into Foley Road. Follow this road all the way to the top where the property can be found on the right hand side in the corner as marked by our 'For Sale' board.

Property Surveys - Qualified Chartered Surveyors (with over 20 years experience) available to undertake surveys (to include Mortgage Surveys/RICS Housebuyers Reports/Full Structural Surveys).

Awaiting Vendor Approval - These details are yet to be approved by the vendor. Please contact the office for verified details.

Read more

epc

Three Crosses Road, Ross-on-wye

5 Bedroom Semi-Detached House

Three Crosses Road, Ross-On-Wye

Kipling Road, Ledbury

3 Bedroom Semi-Detached House

Kipling Road, Ledbury

Freemans Orchard, Newent

3 Bedroom End of Terrace House

Freemans Orchard, Newent

The Tythings, Newent

3 Bedroom Semi-Detached House

The Tythings, Newent

Croft Road, Newent

3 Bedroom Semi-Detached House

Croft Road, Newent

Knights Way, Newent

3 Bedroom Semi-Detached House

Knights Way, Newent


OPENING HOURS: Monday to Friday 8.30am to 7pm, Saturday 9am to 5.30pm

Newent Office
4 High Street
Newent
Gloucestershire
GL18 1AN

Sales
Tel:
01531 820844
newent@stevegooch.co.uk

Lettings
Tel:
01531 822829
lettings@stevegooch.co.uk

Coleford Office
1 High Street
Coleford
Gloucestershire
GL16 8HA

Tel: 01594 835566
coleford@stevegooch.co.uk

Mitcheldean Office
The Cross
Mitcheldean
Gloucestershire
GL17 0BP

Tel: 01594 542535
mitcheldean@stevegooch.co.uk

Gloucester Office
27 Windsor Drive
Tuffley
Gloucester
GL4 0QJ

Tel: 01452 505566
gloucester@stevegooch.co.uk

 
 

Update Cookies Preferences