Book a Property Valuation

Parkend Walk, Sling, Coleford

Price £225,000

Semi-Detached House

Overview

2 Bedroom Semi-Detached House for sale in Parkend Walk, Sling, Coleford

Key Features:

  • Two Bedroom Semi Detached Property
  • Spacious Lounge with Feature Wood Burner
  • Separate Kitchen and Dining Room / Office
  • Large Off Road Parking Area
  • Generous Rear Garden with Patio and Lawn
  • EPC Rating C, Council Tax B, Freehold

A WELL PRESENTED TWO BEDROOM SEMI DETACHED PROPERTY, benefitting from a LARGE OFF ROAD PARKING AREA, GENEROUS REAR GARDEN and SEPARATE KITCHEN and DINING SPACE. The property also offers a SPACIOUS LOUNGE with FEATURE WOOD BURNER. Upstairs provides TWO DOUBLE BEDROOMS and a MODERN SHOWER ROOM.

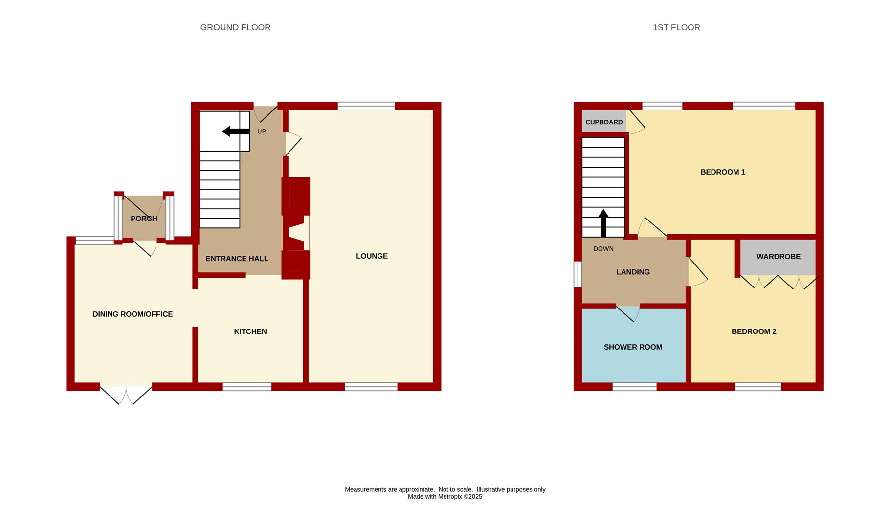
Entrance Hallway - Accessed via partially glazed frosted UPVC front door. Stairs to first floor, understairs storage space, radiator. Doors to:

Lounge - 5.99m x 3.30m (19'8 x 10'10) - Front and rear aspect UPVC double glazed windows. Feature wood burner with brick surround, power points, double radiator.

Kitchen - 3.71m x 2.36m (12'2 x 7'9) - Rear aspect UPVC double glazed window. Range of wall, drawer and base mounted units with built-in electric oven & gas hob, space for washing machine, slimline dishwasher, and dryer. Space for fridge freezer, heated towel rail, understairs cupboard space. Access to:

Dining Room / Office - 3.12m x 2.67m (10'3 x 8'9 ) - Rear aspect UPVC double glazed French doors opening to garden, breakfast bar area, bespoke office desk, radiator, power points, and front aspect UPVC double glazed window. Front aspect door gives access into:

Porch Area - Front aspect UPVC door and side aspect UPVC window. Underfloor heating.

FROM THE ENTRANCE HALLWAY, STAIRS LEAD TO THE FIRST FLOOR LANDING.

Landing - Side aspect UPVC double glazed window, radiator, power points.

Bedroom 1 - 4.32m x 2.77m (14'2 x 9'1) - Two front aspect UPVC double glazed windows, built-in wardrobe housing the Worcester combination boiler, power points, large double radiator.

Bedroom 2 - 3.18m x 3.12m (10'5 x 10'3) - Rear aspect UPVC double glazed window, built-in wardrobe space, radiator, power points.

Shower Room - 2.36m x 1.65m (7'9 x 5'5) - Rear aspect frosted UPVC double glazed window. Vanity wash hand basin with mixer tap, close-coupled WC, heated towel rail, large double walk-in shower with mains shower and rainfall head, underfloor heating. Inset spotlights and extractor fan.

Outside - To the front of the property is a large off road parking area for several vehicles and steps leading to the front door.

The rear garden has a covered patio area with plastic roof leading to a lawned garden with stone chipping borders. Further small patio area with garden shed. Enclosed by recently replaced fencing.

Services - Mains water, electricity, gas and drainage.

Mobile Phone Coverage/Broadband Availability - It is down to each individual purchaser to make their own enquiries. However, we have provided a useful link via Rightmove and Zoopla to assist you with the latest information. In Rightmove, this information can be found under the brochures section, see "Property and Area Information" link. In Zoopla, this information can be found via the Additional Links section, see "Property and Area Information" link.

Water Rates - To be confirmed.

Local Authority - Council Tax Band: B
Forest of Dean District Council, Council Offices, High Street, Coleford, Glos. GL16 8HG.

Tenure - Freehold.

Viewings - Strictly through the Owners Selling Agent, Steve Gooch, who will be delighted to escort interested applicants to view if required. Office Opening Hours 8.30am - 7.00pm Monday to Friday, 9.00am - 5.30pm Saturday.

Directions - From Coleford town centre proceed to the traffic lights and turn right signposted Lydney/Chepstow. Proceed along this road and continue straight over at the traffic lights, carry on for approximately 1.5 miles turning left onto Oakwood Road, at the cross roads turn left on to Parkend Walk where the property can be found on the right hand side via our for sale board.

Property Surveys - Qualified Chartered Surveyors (with over 20 years experience) available to undertake surveys (to include Mortgage Surveys/RICS Housebuyers Reports/Full Structural Surveys)

Awaiting Vendor Approval - These details are yet to be approved by the vendor. Please contact the office for verified details.

Read more

epc

Livia Way, Lydney

3 Bedroom End of Terrace House

Livia Way, Lydney

Greenways Drive, Coleford

3 Bedroom Semi-Detached House

Greenways Drive, Coleford

Poppy Field, Broadwell, Coleford

2 Bedroom Semi-Detached House

Poppy Field, Broadwell, Coleford

Ridler Road, Lydney

3 Bedroom Semi-Detached House

Ridler Road, Lydney

Gloucester Road, Coleford

4 Bedroom Semi-Detached House

Gloucester Road, Coleford

Queen Street, Lydney

3 Bedroom Terraced House

Queen Street, Lydney


OPENING HOURS: Monday to Friday 8.30am to 7pm, Saturday 9am to 5.30pm

Newent Office
4 High Street
Newent
Gloucestershire
GL18 1AN

Sales
Tel:
01531 820844
newent@stevegooch.co.uk

Lettings
Tel:
01531 822829
lettings@stevegooch.co.uk

Coleford Office
1 High Street
Coleford
Gloucestershire
GL16 8HA

Tel: 01594 835566
coleford@stevegooch.co.uk

Mitcheldean Office
The Cross
Mitcheldean
Gloucestershire
GL17 0BP

Tel: 01594 542535
mitcheldean@stevegooch.co.uk

Gloucester Office
27 Windsor Drive
Tuffley
Gloucester
GL4 0QJ

Tel: 01452 505566
gloucester@stevegooch.co.uk

 
 

Update Cookies Preferences