Book a Property Valuation
SSTC

Peregrine Close, Newent

Price £380,000

Detached House

Overview

4 Bedroom Detached House for sale in Peregrine Close, Newent

Key Features:

  • Four Double Bedroom Detached House
  • En Suite to Master Bedroom
  • Open Outlook to the Front
  • Enclosed West Facing Rear Garden
  • Offered with No Onward Chain
  • EPC Rating - B, Council Tax - E, Freehold

FOUR DOUBLE BEDROOM DETACHED HOUSE with EN SUITE to MASTER BEDROOM, OPEN OUTLOOK to the FRONT, ENCLOSED WEST FACING REAR GARDEN and all being offered with NO ONWARD CHAIN.

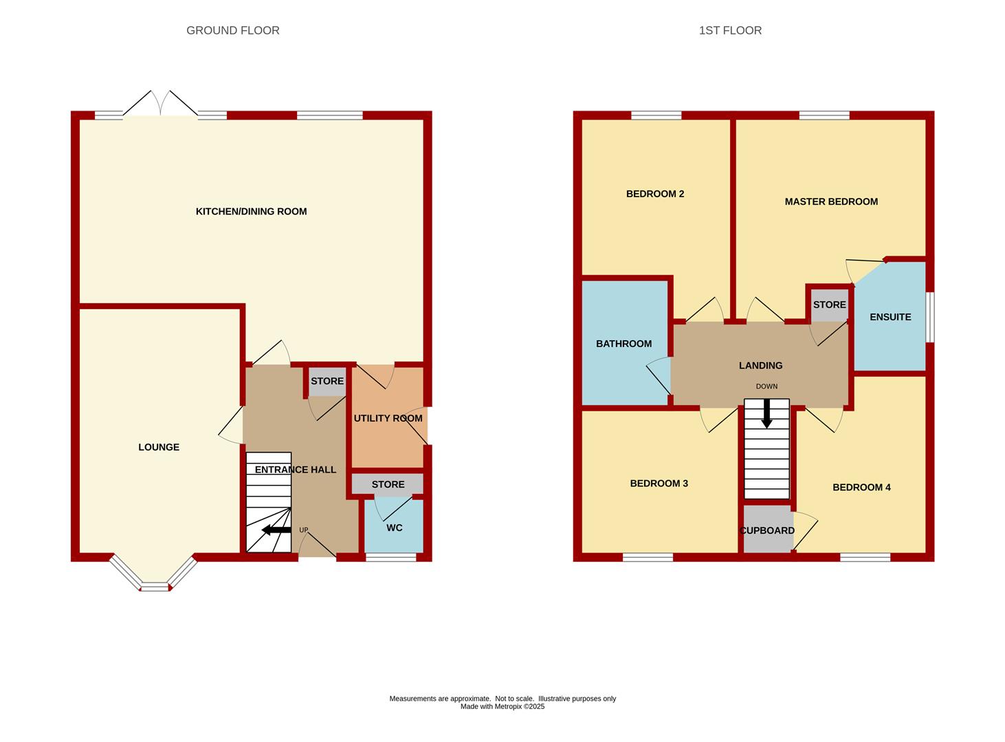
The property is accessed via a timber door into:

Entrance Hallway - Single radiator, storage cupboard, stairs lead to the first floor, front aspect window.

Cloakroom - White suite comprising close coupled W.C, pedestal wash hand basin with tiled splashbacks, single radiator, built in cupboard, front aspect frosted window.

Lounge - 5.61m into bay x 3.38m (18'05 into bay x 11'01) - Two double radiators, front aspect bay window.

Kitchen/Diner - 7.29m x 3.81m max (23'11 x 12'06 max ) - Fitted kitchen to comprise a single drainer sink unit with mixer tap above, range of base and wall mounted units, integrated electric double oven, five ring gas hob and cooker hood above, integrated dishwasher and fridge freezer, two double radiators, rear aspect window overlooking the gardens. Fully glazed French doors leading out to the rear patio. Door into:

Utlity Room - 2.16m x 1.55m (7'01 x 5'01) - Built in cupboards, plumbing for automatic washing machine, space for tumble dryer, radiator, gas fired central heating and domestic hot water boiler, side aspect frosted door.

FROM THE HALLWAY, STAIRCASE LEADS TO THE FIRST FLOOR:

Landing - Single radiator, airing cupboard with shelving, access to roof space. Door into:

Bedroom 1 - 4.11m x 4.09m (13'06 x 13'05) - Single radiator, rear aspect window.

En Suite Shower Room - Double fitted shower cubicle and tray with tiled surround, low level W.C, pedestal wash hand basin, heated towel rail, side aspect frosted window.

Bedroom 2 - 3.15m x 2.79m minmum (10'04 x 9'02 minmum ) - Single radiator, rear aspect window.

Bedroom 3 - 3.45m x 3.02m (11'04 x 9'11) - Single radiator, front aspect window.

Bedroom 4 - 3.63m x 2.72m maximum (11'11 x 8'11 maximum ) - (L shaped), single radiator, built in cupboard over the stairs, front aspect window.

Bathroom - Bath with shower attachment over and tiled surround, pedestal wash hand basin, tiled splashbacks, close coupled W.C, heated towel rail.

Outside - Tarmac driveway providing parking for three vehicles which in turn leads to:

Single Garage - 5.18m x 2.74m (17' x 9') - Accessed via and up and over door,

A pathway leads to the front door with lawned area, flower borders, outside lighting. Gateway gives access to the rear garden.

Rear Garden - Paved patio area, outside tap and lighting, walling and fencing surround, west facing.

Services - Mains water, electricity, drainage, gas.

Water Rates - To be advised.

Local Authority - Council Tax Band: E
Forest of Dean District Council, Council Offices, High Street, Coleford, Glos. GL16 8HG.

Tenure - Freehold.

Viewings - Strictly through the Owners Selling Agent, Steve Gooch, who will be delighted to escort interested applicants to view if required. Office Opening Hours 8.30am - 7.00pm Monday to Friday, 9.00am - 5.30pm Saturday.

Directions - From our Newent office, proceed along the High Street into Gloucester Street taking the first right onto Onslow Road and then the second left into Meek Road. Continue along heading into Merlin Gate, turning left onto the David Wilson development, then taking the second left hand turning into Peregrine Close. Turn left where the property can be located on the left hand side.

Property Surveys - Qualified Chartered Surveyors (with over 20 years experience) available to undertake surveys (to include Mortgage Surveys/RICS Housebuyers Reports/Full Structural Surveys)

Awaiting Vendor Approval - These details are yet to be approved by the vendor. Please contact the office for verified details.

Agent's Note - AGENT'S NOTE
It is worth noting that there are two incentives available to prospective purchasers, if required.
Option 1 - if you don't have a property to sell then the vendor will consider paying a 5% deposit contribution through their solicitors.
Option 2 - if you have a property to sell that is worth less than ?304,000, the builder would consider a part exchange. This would be subject to 2 independent valuations, followed by an RICs valuation. The builder would then come up with a part exchange figure.

Read more

epc

Long Field, Highnam

4 Bedroom Detached House

Long Field, Highnam

Yew Tree Close, Corse

2 Bedroom Detached Bungalow

Yew Tree Close, Corse

Bromsash, Ross-on-wye

3 Bedroom Barn Conversion

Bromsash, Ross-On-Wye

Wetherleigh Drive, Highnam

4 Bedroom Detached House

Wetherleigh Drive, Highnam

Grange Court, Westbury-on-severn

2 Bedroom Detached Bungalow

Grange Court, Westbury-On-Severn

The Quay, Ashleworth

3 Bedroom Cottage

The Quay, Ashleworth


OPENING HOURS: Monday to Friday 8.30am to 7pm, Saturday 9am to 5.30pm

Newent Office
4 High Street
Newent
Gloucestershire
GL18 1AN

Sales
Tel:
01531 820844
newent@stevegooch.co.uk

Lettings
Tel:
01531 822829
lettings@stevegooch.co.uk

Coleford Office
1 High Street
Coleford
Gloucestershire
GL16 8HA

Tel: 01594 835566
coleford@stevegooch.co.uk

Mitcheldean Office
The Cross
Mitcheldean
Gloucestershire
GL17 0BP

Tel: 01594 542535
mitcheldean@stevegooch.co.uk

Gloucester Office
27 Windsor Drive
Tuffley
Gloucester
GL4 0QJ

Tel: 01452 505566
gloucester@stevegooch.co.uk

 
 

Update Cookies Preferences