Book a Property Valuation
SSTC

Copley Drive, Coleford

Price £245,000

Semi-Detached House

Overview

3 Bedroom Semi-Detached House for sale in Copley Drive, Coleford

Key Features:

  • Three Bedroom Family Home
  • Versatile Ground Floor Room / Utility / Office
  • Kitchen With Dining Area
  • Private Rear Garden
  • Popular Residential Location
  • EPC Energy Rating D, Council Tax Band B, Freehold

A WELL-PRESENTED THREE BEDROOM HOME offering SPACIOUS LIVING ACCOMMODATION, a VERSATILE GROUND FLOOR ROOM, and a PRIVATE REAR GARDEN, situated in a POPULAR RESIDENTIAL LOCATION close to Coleford town.

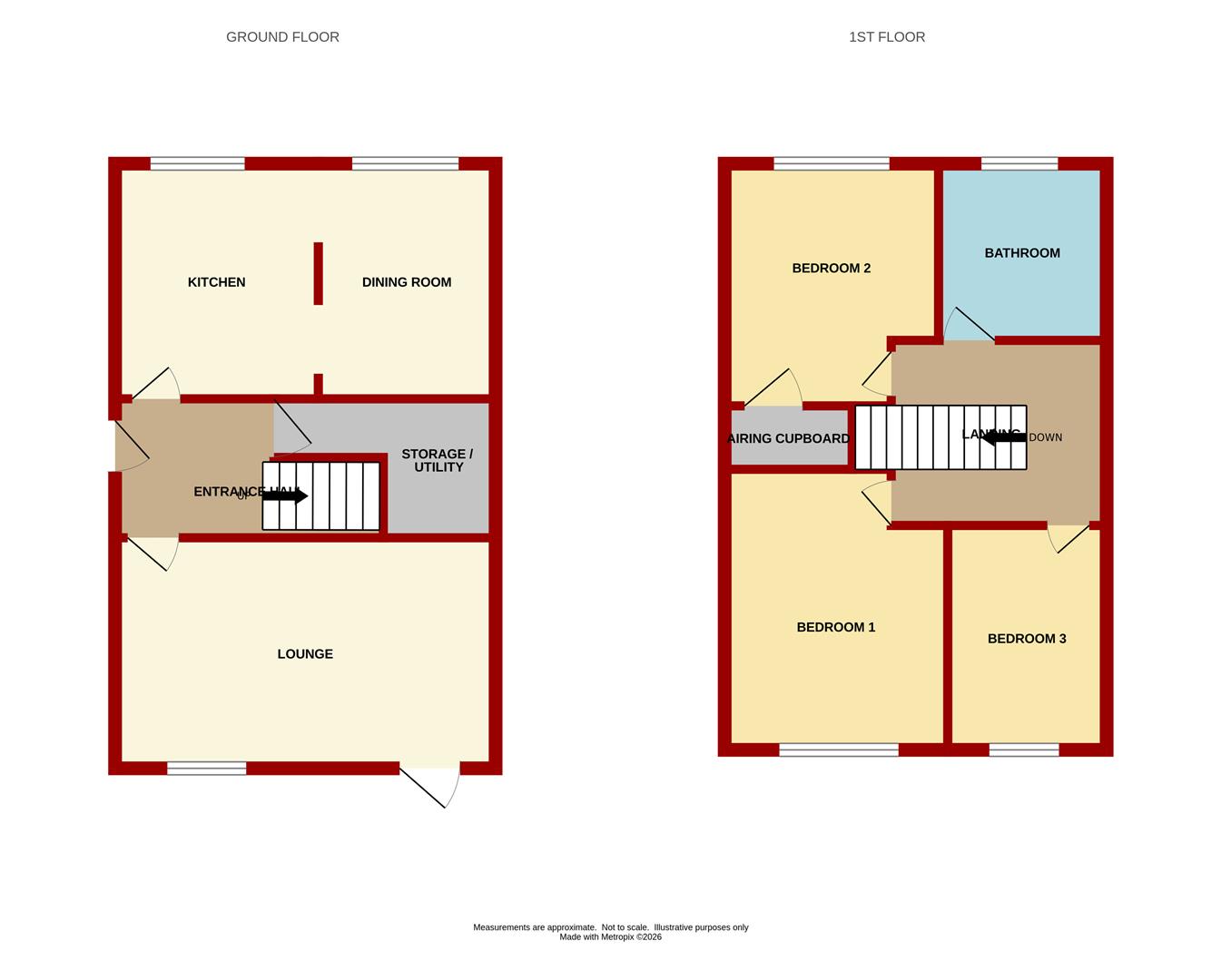
Entrance Hallway - Accessed via a partially double-glazed uPVC door. Featuring radiator and power points. Doors lead to the kitchen and lounge, with stairs rising to the first-floor landing.

Kitchen - 4.98m x 3.07m (16'04 x 10'01) - Kitchen (16'04 x 10'01)
Fitted with a range of base, wall and drawer-mounted units. Integrated oven with four-ring gas hob and extractor fan, integrated dishwasher, and space and plumbing for washing machine. Power and appliance points, part-tiled walls and front-facing double-glazed uPVC window. Breakfast bar and open access into the dining area.

Dining Area - With radiator, power points and front-facing double-glazed uPVC window, providing a practical and sociable space for everyday dining.

Lounge - 4.98m x 3.66m (16'04 x 12'00) - A comfortable reception room featuring radiators, power points, television point and coving. Rear-facing double-glazed uPVC window and uPVC door opening directly onto the rear garden.

Ground Floor Versatile Room / Utility - A flexible space located beneath the stairs, previously forming part of the garage and currently used as a utility room. This adaptable room would also suit use as a home office, hobby room or additional storage area.

First Floor Landing - With power point and access to loft space. Doors lead to all first-floor accommodation.

Bedroom One - 3.78m x 2.92m (12'05 x 9'07) - A double bedroom featuring radiator, power points and rear-facing double-glazed uPVC window.

Bedroom Two - 2.79m x 2.54m (9'02 x 8'04) - With radiator, power points, built-in cupboard and front-facing double-glazed uPVC window.

Bedroom Three - 2.90m x 1.98m (9'06 x 6'06) - Featuring radiator, power points and rear-facing double-glazed uPVC window.

Bathroom - Fitted with a white suite comprising panelled bath with electric shower over and tiled surround, pedestal wash hand basin and low-level WC. Heated towel rail, part-tiled walls and front-facing double-glazed uPVC frosted window.

Outside - To the front of the property there is a driveway with off-road parking for two cars. The garden can also be accessed directly from the lounge. It is mostly laid to lawn and there is a patio providing a pleasant outdoor space for seating and entertaining.

Services - Mains water, electricity, gas and drainage connected.

Mobile Phone Coverage/Broadband Availability - It is down to each individual purchaser to make their own enquiries. However, we have provided a useful link via Rightmove and Zoopla to assist you with the latest information. In Rightmove, this information can be found under the brochures section, see "Property and Area Information" link. In Zoopla, this information can be found via the Additional Links section, see "Property and Area Information" link.

Water Rates - Severn Trent - rates to be advised.

Local Authority - Council Tax Band: B
Forest of Dean District Council, Council Offices, High Street, Coleford, Glos. GL16 8HG.

Tenure - Freehold.

Viewings - Strictly through the Owners Selling Agent, Steve Gooch, who will be delighted to escort interested applicants to view if required. Office Opening Hours 8.30am - 7.00pm Monday to Friday, 9.00am - 5.30pm Saturday.

Directions - From the Coleford office proceed down to the traffic lights turning right onto Old Station Way, continue taking the third right into Fairways, first right into Nash Way. Follow the road around to Copley Drive and the property can be found via our For Sale board.

Property Surveys - Qualified Chartered Surveyors (with over 20 years experience) available to undertake surveys (to include Mortgage Surveys/RICS Housebuyers Reports/Full Structural Surveys)

Awaiting Vendor Approval - These details are yet to be approved by the vendor. Please contact the office for verified details.

Read more

epc

Par Four Lane, Lydney

3 Bedroom Terraced House

Par Four Lane, Lydney

Gloucester Road, Coleford

2 Bedroom Detached Bungalow

Gloucester Road, Coleford

Bayberry Place, Coalway, Coleford

2 Bedroom Detached Bungalow

Bayberry Place, Coalway, Coleford

Marsden House, Whitchurch, Ross-on-wye

2 Bedroom Apartment

Marsden House, Whitchurch, Ross-On-Wye

Parkend, Lydney

2 Bedroom Cottage

Parkend, Lydney

Coverham Close, Berry Hill, Coleford

3 Bedroom Semi-Detached House

Coverham Close, Berry Hill, Coleford


OPENING HOURS: Monday to Friday 8.30am to 7pm, Saturday 9am to 5.30pm

Newent Office
4 High Street
Newent
Gloucestershire
GL18 1AN

Sales
Tel:
01531 820844
newent@stevegooch.co.uk

Lettings
Tel:
01531 822829
lettings@stevegooch.co.uk

Coleford Office
1 High Street
Coleford
Gloucestershire
GL16 8HA

Tel: 01594 835566
coleford@stevegooch.co.uk

Mitcheldean Office
The Cross
Mitcheldean
Gloucestershire
GL17 0BP

Tel: 01594 542535
mitcheldean@stevegooch.co.uk

Gloucester Office
27 Windsor Drive
Tuffley
Gloucester
GL4 0QJ

Tel: 01452 505566
gloucester@stevegooch.co.uk

 
 

Update Cookies Preferences