Book a Property Valuation

Pettycroft, Ruardean

Price £600,000

Detached House

Overview

4 Bedroom Detached House for sale in Pettycroft, Ruardean

Key Features:

  • Characterful Period Cottage
  • Beautifully Landscaped Enclosed Garden
  • Detached Double Garage And Ample Off-Road Parking
  • Ideal Family Home With Generous Living Space
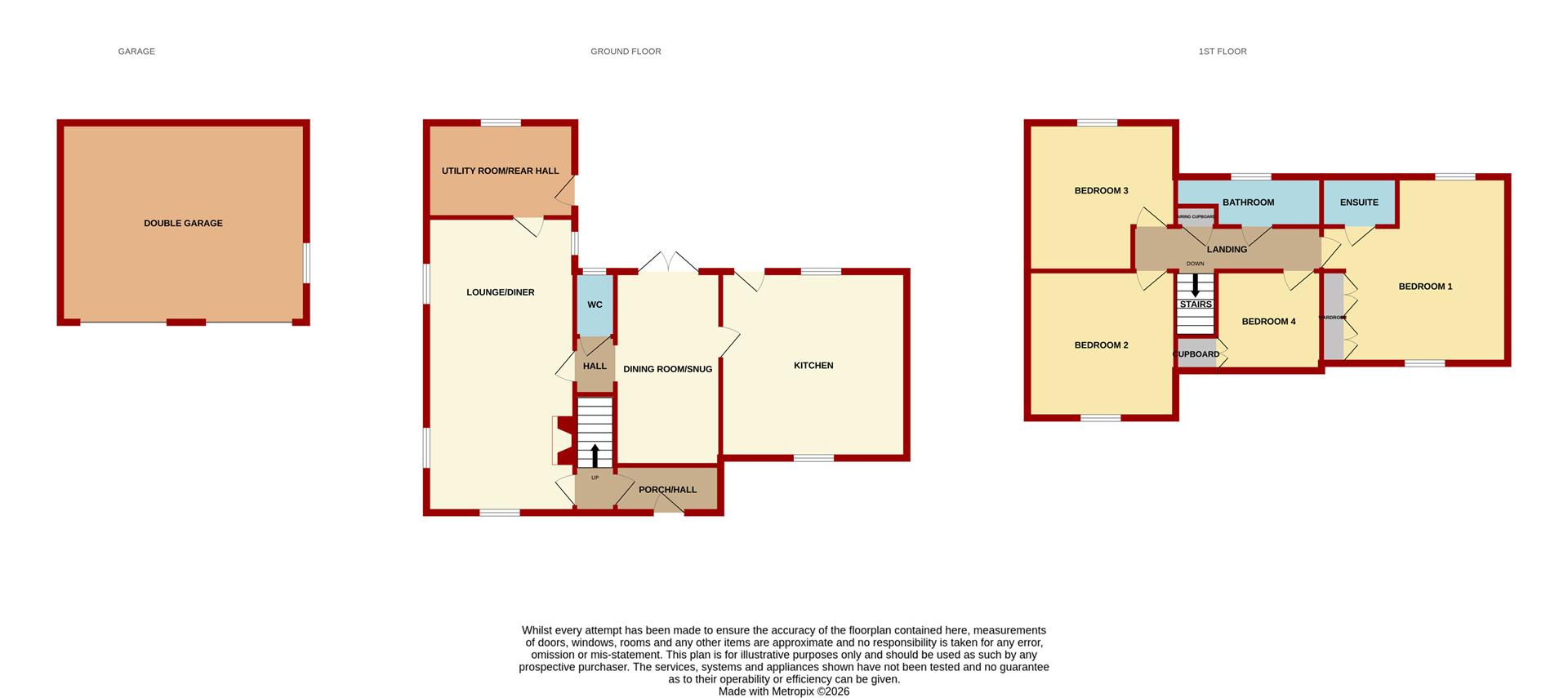
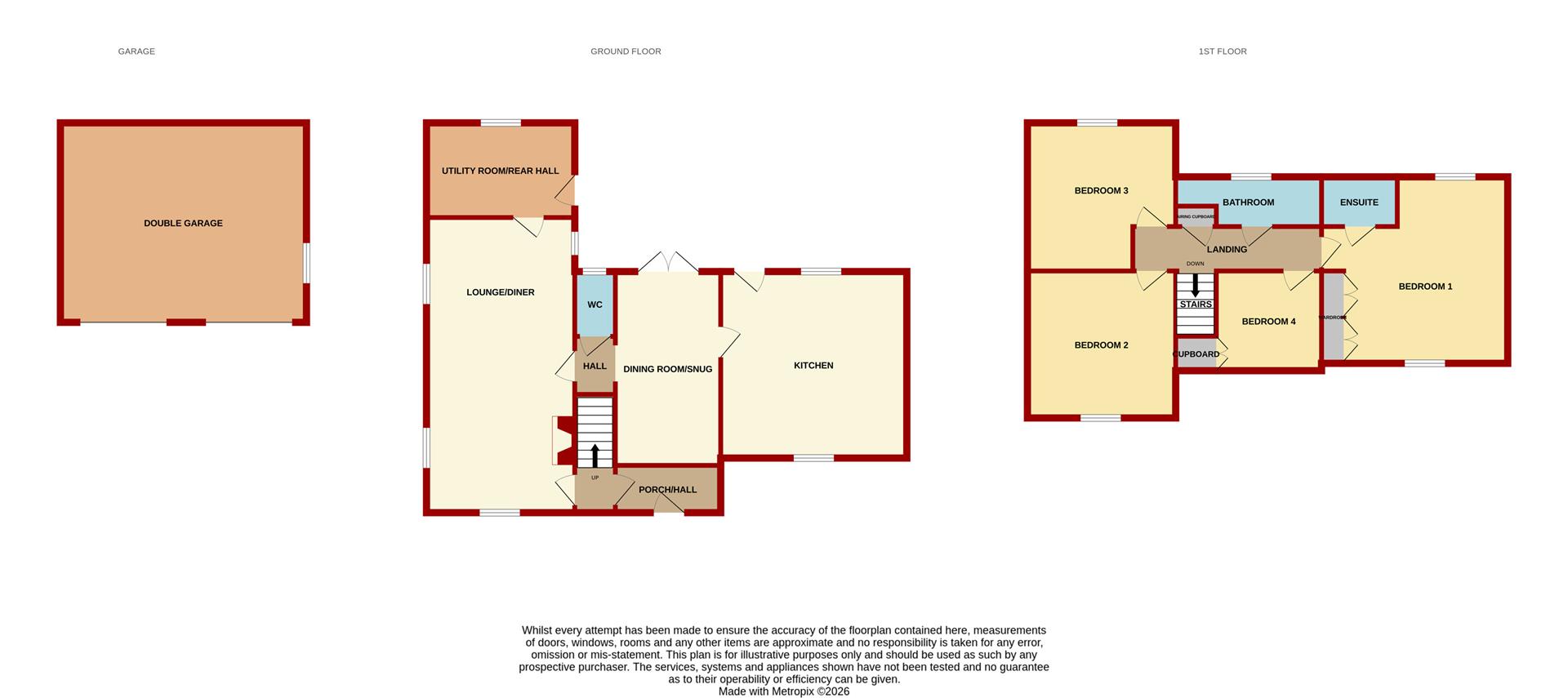
  • Accommodation: Entrance Hall, Inner Hallway, Front-To-Back Lounge/Diner, Utility Room, Cloakroom, Dining Room/Snug, Kitchen; Principal Bedroom With En-Suite, Three Further Bedrooms And Family Bath...
  • EPC Rating-TBC, Council Tax- D, Freehold

Steve Gooch Estate Agents are delighted to offer for sale this CHARACTERFUL PERIOD COTTAGE, set within GARDENS AND GROUNDS OF CIRCA ONE THIRD OF AN ACRE, and benefiting from a DETACHED DOUBLE GARAGE, AMPLE OFF-ROAD PARKING, and a BEAUTIFULLY LANDSCAPED ENCLOSED GARDEN, creating an ideal family home with space both inside and out.

The accommodation comprises: ENTRANCE HALL, INNER HALLWAY, FRONT-TO-BACK LOUNGE / DINER, UTILITY ROOM, CLOAKROOM, DINING ROOM / SNUG, and KITCHEN to the ground floor. To the first floor is the PRINCIPAL BEDROOM WITH EN-SUITE, THREE FURTHER BEDROOMS, and a FAMILY BATHROOM.

The property is accessed via a porch area with ceiling light and composite front door with obscure glazed leaded panels inset. This leads into the:

Entrance Porch - 2.64m x 1.17m (8'08 x 3'10) - Ceiling light, coving, tiled flooring, single radiator, front aspect upvc lead light double glazed window, glazed panel timber door giving access into:

Inner Hall - Stairs leading to the first floor, ceiling light, central heating thermostat controls, single radiator, solid timber doors giving access into:

Lounge/Dining Room - 7.37m x 3.71m (24'02 x 12'02) - Lounge- Feature brick fireplace with stone hearth, wooden lintel over, multi fuel stove inset, ceiling light, coving, two radiators, dado rail, power points, tv point, front aspect upvc lead light bay style window overlooking the front garden, side aspect lead light upvc window overlooking the driveway.

Dining Area- Ceiling light, coving, radiator, power points, dado rail, alcove cupboard with arch shaped glazed panel doors, drawer and cupboard beneath, side aspect upvc double glazed window overlooking the patio, timber glazed panel door giving access into the:

Utility - 4.14m x 2.36m (13'07 x 7'09) - Ceiling light, coving, access to roof space, belfast style sink with mixer tap over, square edge worktops, range of base and wall mounted units, wall mounted display cabinet, space for washing machine, space for tumble dryer, power points, tiled flooring, double radiator, Worcester oil fired central heating and domestic hot water boiler, rear aspect upvc double glazed window overlooking the garden, side aspect upvc glazed panel door opening onto the patio.

From the lounge, door leads into an inner hallway, ceiling light, archway opening into dining room/snug, wooden plank thumb latch door giving access into:

Cloakroom - White suite with concealed cistern w.c, wash hand basin with monobloc mixer tap over, vanity cupboard beneath, wet board surround, ceiling light, electrical consumer unit, dado rail, single radiator, wood effect flooring, exposed timber skirting boards, rear aspect upvc obscure double glazed window.

Dining Room/Snug - 4.83m x 2.69m (15'10 x 8'10) - Ceiling light, coving, single radiator, power points, pair of rear aspect upvc double glazed French doors opening onto the patio with views over the garden, glazed panel timber door giving access into:

Kitchen - 4.65m x 1.57m (15'03 x 5'02) - Single bowl, single drainer sink unit with mixer tap over, range of base and wall mounted units, tiled surrounds, rolled edge worktops, island unit with pop up power socket, range of cupboard and drawers, rangemaster cooker with gas & electric hobs, two electric ovens, space for freestanding fridge/freezer, integrated dishwasher, two directional ceiling light rails, coving, tiled flooring, ample power points, double radiator, front aspect upvc leaded window overlooking the front garden, rear aspect upvc double glazed window overlooking the rear garden, rear aspect upvc stable-style double glazed door with glazed panel to top.

From the inner hallway, stairs lead up to the first floor:

Landing - Ceiling lights, two access points to roof space, solid timber doors giving access into:

Bedroom One - 4.60m max x 4.65m max (15'01 max x 15'03 max) - Ceiling lights, access to roof space, coving, range of built-in wardrobes with hanging and shelving options, power points, double radiator, front aspect upvc leaded double glazed window, rear aspect upvc double glazed window overlooking the rear garden, solid timber door giving access into:

Ensuite Shower Room - 1.88m x 1.37m (6'02 x 4'06) - White suite with close coupled w.c, pedestal wash hand basin with monobloc mixer tap over, quadrant shower cubicle with mains fed shower fitted, inset ceiling spots, extractor fan, fully tiled walls, heated towel radiator, rear aspect upvc obscure glazed window.

Bedroom Two - 3.73m x 3.68m (12'03 x 12'01) - Ceiling light, coving, single radiator, power points, front aspect upvc leaded double glazed window.

Bedroom Three - 3.76m x 3.76m (12'04 x 12'04) - Ceiling light, coving, single radiator, power points, timber window ledge, rear aspect double glazed window overlooking the garden.

Bedroom Four - 2.84m x 2.31m (9'04 x 7'07) - Ceiling light, coving, pair of double doors giving access to over stairs storage cupboard, power points, single radiator, front aspect upvc leaded double glazed window.

Family Bathroom - 3.58m x 1.50m (11'09 x 4'11) - White suite with roll top claw-footed freestanding bath, mixer tap and shower attachment fitted over, pedestal wash hand basin, close coupled w.c, half tile walls, tiled flooring, heated towel radiator, inset ceiling spots, directional ceiling light, ceiling fan, large rear aspect upvc obscure double glazed window.

Detached Double Garage & Parking - 6.15m x 4.98m (20'02 x 16'04) - Accessed via a pair of roller shutter doors, power points, lighting, consumer unit, boarded eaves storage space, side aspect upvc double glazed window.
Driveway provides parking for around four to five vehicles

Outside - The front garden is enclosed by stone walling with wrought-iron railings above, with a matching wrought-iron gate giving access to the front door. Designed for low maintenance, the garden is laid to gravel with small trees and shrubs, and offers access to both sides of the property. A gravelled apron provides access to a metal gate leading to the driveway, partially enclosed by mature hedging.

The rear garden boasts a generous Indian sandstone patio seating area with a water feature, steps descending to lawned sections, and a potting shed attached to the rear of the garage. There is also an oil storage tank, various garden sheds, a feature well, established trees, shrubs and bushes, and a pergola. Further benefits include outside lighting and an external tap.

Directions - From the Mitcheldean office, proceed down to the mini roundabout, turning right onto the A4136. Continue up over Plump hill and upon reaching the traffic light at Nailbridge, turn right signposted to Ruardean. Proceed up through the village, passing the church. Take the next turning left into School Road. Follow along, filtering right just after the school, continuing along until it becomes Kingsway Lane. Proceed to the top, taking the 90 degree left hand bend into Pettycroft. The property can be found after a short distance on the right hand side.

Services - Mains water, drainage, electricity. Oil

Water Rates - Severn Trent Water authority

Local Authority - Council Tax Band: D
Forest of Dean District Council, Council Offices, High Street, Coleford, Glos. GL16 8HG.

Tenure - Freehold

Viewing - Strictly through the Owners Selling Agent, Steve Gooch, who will be delighted to escort interested applicants to view if required. Office Opening Hours 8.30am - 6.00pm Monday to Friday, 9.00am - 5.30pm Saturday.

Property Surveys - We have association with Qualified Property Surveyors offering a range of professional services for buyers and sellers.

Money Laundering Regulations - To comply with Money Laundering Regulations, prospective purchasers will be asked to produce identification documentation at the time of making an offer. We ask for your cooperation in order that there is no delay in agreeing the sale, should your offer be acceptable to the seller(s)

Read more
Sorry! An EPC is not available for this property.

Morse Road, Drybrook

4 Bedroom Detached House

Morse Road, Drybrook

Flaxley Road, Mitcheldean

5 Bedroom Semi-Detached House

Flaxley Road, Mitcheldean

Whitehill Lane, Drybrook

4 Bedroom House

Whitehill Lane, Drybrook

Apple Tree Cottage With Annexe, The Pludds, Ruardean

5 Bedroom Semi-Detached House

Apple Tree Cottage With Annexe, The Pludds, Ruardean

Lydbrook Heights, Wye Valley View, Upper Lydbrook

5 Bedroom Detached House

Lydbrook Heights, Wye Valley View, Upper Lydbrook

Abenhall Road, Mitcheldean

6 Bedroom Country House

Abenhall Road, Mitcheldean


OPENING HOURS: Monday to Friday 8.30am to 7pm, Saturday 9am to 5.30pm

Newent Office
4 High Street
Newent
Gloucestershire
GL18 1AN

Sales
Tel:
01531 820844
newent@stevegooch.co.uk

Lettings
Tel:
01531 822829
lettings@stevegooch.co.uk

Coleford Office
1 High Street
Coleford
Gloucestershire
GL16 8HA

Tel: 01594 835566
coleford@stevegooch.co.uk

Mitcheldean Office
The Cross
Mitcheldean
Gloucestershire
GL17 0BP

Tel: 01594 542535
mitcheldean@stevegooch.co.uk

Gloucester Office
27 Windsor Drive
Tuffley
Gloucester
GL4 0QJ

Tel: 01452 505566
gloucester@stevegooch.co.uk

 
 

Update Cookies Preferences