Book a Property Valuation

Primrose Way, Lydney

Price £290,000

Detached House

Overview

3 Bedroom Detached House for sale in Primrose Way, Lydney

Key Features:

  • A Well Presented Three Bedroom Detached Home
  • Large End Plot With Inside Benefitting From A Well Proportioned Lounge And Dining Room
  • Three Good Sized Bedrooms
  • Off-Road Parking For Two Vehicles
  • Short Walk Into Lydney Town Centre
  • EPC Energy Rating C, Council Tax Band C, Freehold

Located just a SHORT WALK from LYDNEY TOWN CENTRE, this WELL-PRESENTED THREE BEDROOM DETACHED HOME sits on a LARGE END PLOT and comes to the market for the VERY FIRST TIME.

The property offers a GENEROUS LOUNGE and a SEPARATE DINING ROOM, together with THREE GOOD-SIZED BEDROOMS, providing PRACTICAL AND COMFORTABLE LIVING SPACE throughout. Externally, the home enjoys OFF-ROAD PARKING FOR TWO VEHICLES and ample outside space thanks to its enviable plot position.

This is an EXCELLENT OPPORTUNITY for those seeking a DETACHED HOME in a CONVENIENT LOCATION close to SHOPS, AMENITIES and TRANSPORT LINKS.

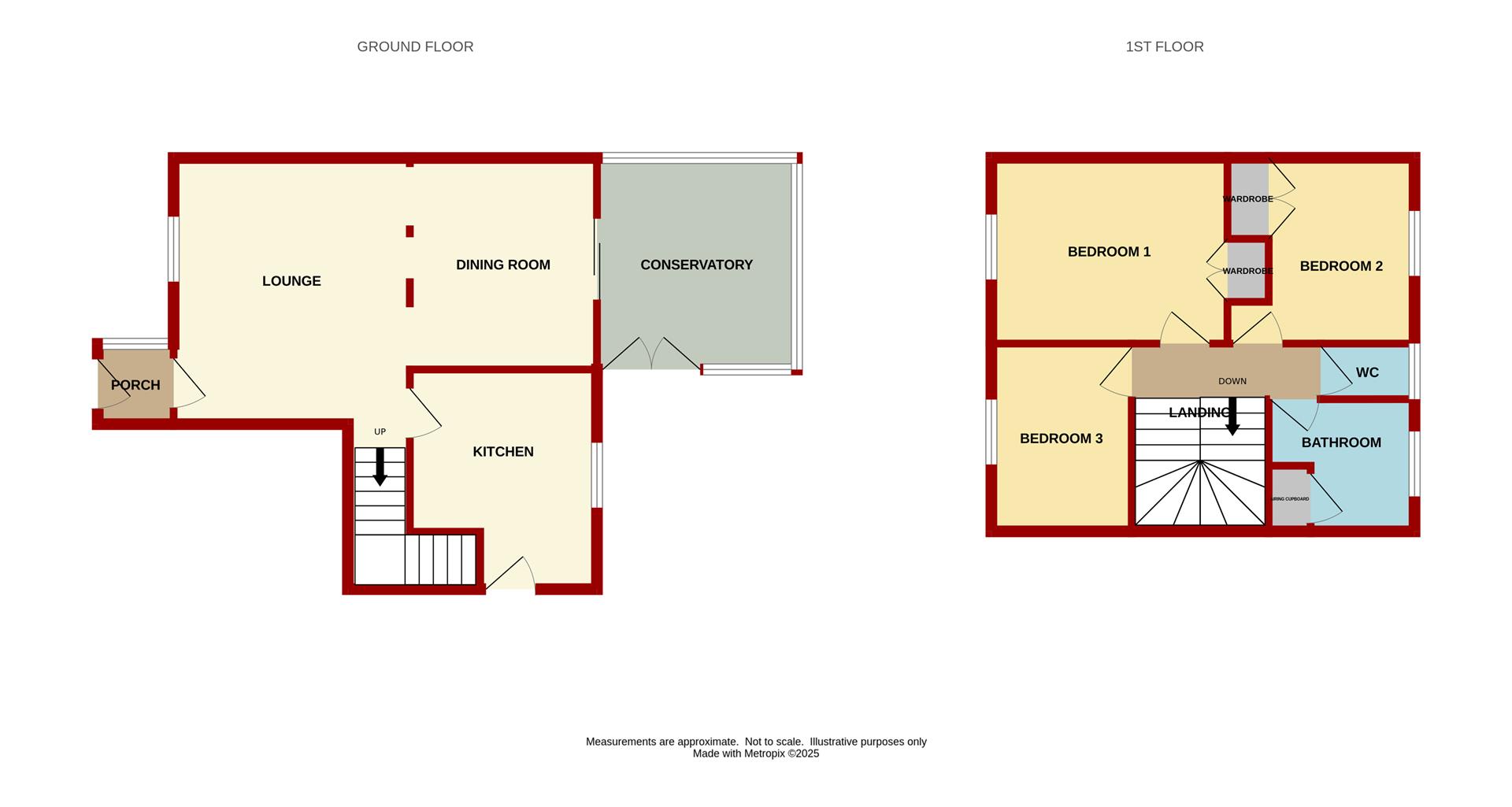
Porch - 1.19m x 1.19m (3'11 x 3'11) - Accessed via a partly glazed upvc frosted door. Side and front aspect double glazed upvc frosted window. Wooden door giving access into:

Lounge - 3.63m x 4.11m (11'11 x 13'06) - Front aspect double glazed upvc window, power points, tv point, gas fireplace, radiator, stairs to first floor landing. Opening into:

Dining Room - 2.87m x 3.28m (9'05 x 10'09) - Radiator, power points, rear aspect aluminium double glazed sliding doors which gives access into:

Conservatory - 3.61m x 3.15m (11'10 x 10'04) - Rear and side aspect double glazed upvc windows, side aspect patio doors giving access out to the garden, radiator, power points.

From the lounge, door giving access into:

Kitchen - 3.38m x 3.07m (11'01 x 10'01) - Rear aspect double glazed upvc window, range of wall, drawer and base mounted units, built in oven, four gas ring hob with extractor fan over, plastic one and half bowl sink and drainer unit with mixer tap over, space for washing machine, built in fridge/freezer, power points, side aspect upvc double glazed frosted door giving access out to the garden, understairs large cupboard space, radiator.

From the lounge, stairs to first floor landing.

First Floor Landing - Loft access space, power points, doors giving access into all rooms.

Bathroom - 1.83m x 2.26m (6'00 x 7'05) - Rear aspect double glazed upvc frosted window, panelled bath with bath taps over with shower attachment above, sink with tap over, heated towel rail, airing cupboard space and a radiator within.

W.C - 0.86m x 1.42m (2'10 x 4'08) - Rear aspect double glazed upvc frosted window, close coupled WC.

Bedroom One - 3.63m x 3.66m (11'11 x 12'00) - Front aspect double glazed upvc window, radiator, power points, built in wardrobes with hanging and shelving options, sliding doors giving access into another wardrobe space which has hanging and shelving options within.

Bedroom Two - 2.90m x 3.68m (9'06 x 12'01) - Rear aspect double glazed upvc window giving stunning views towards the Severn Bridge and river Severn, power points, radiator, double doors giving access into wardrobe space which has hanging and shelving options.

Bedroom Three - 2.16m x 2.87m (7'01 x 9'05) - Front aspect double glazed upvc window, radiator, power points.

Outside - To the front of the property there is off-road parking for 2 vehicles, gravel patio area.

Side access to the rear garden which comprises of a raised patio area, which steps down to a pathway and a laid to lawn area. The pathway leads down to a further patio and multiple gravelled areas and shed storage. All surrounded by fencing and stone chipping boarders. The garden also has stunning views out towards the Severn Bridge.

Garage - Accessed via electric door.

Services - Mains Gas, Electricity, Water and Drainage.

Mobile Phone Coverage/Broadband Availability - It is down to each individual purchaser to make their own enquiries. However, we have provided a useful link via Rightmove and Zoopla to assist you with the latest information. In Rightmove, this information can be found under the brochures section, see "Property and Area Information" link. In Zoopla, this information can be found via the Additional Links section, see "Property and Area Information" link.

Water Rates - Severn Trent - rates tbc.

Local Authority - Council Tax Band: C
Forest of Dean District Council, Council Offices, High Street, Coleford, Glos. GL16 8HG.

Tenure - Freehold.

Viewings - Strictly through the Owners Selling Agent, Steve Gooch, who will be delighted to escort interested applicants to view if required. Office Opening Hours 8.30am - 7.00pm Monday to Friday, 9.00am - 5.30pm Saturday.

Directions - From Newerne Street in Lydney town centre, turn left onto Albert Street. Turn right onto Woodland Rise and then left into Primrose Way. The property can be found imediately on your left hand side via our For Sale board.

Property Surveys - Qualified Chartered Surveyors (with over 20 years experience) available to undertake surveys (to include Mortgage Surveys/RICS Housebuyers Reports/Full Structural Surveys)

Awaiting Vendor Approval - These details are yet to be approved by the vendor. Please contact the office for verified details.

Read more

epc

Poolway Place, Coleford

3 Bedroom Detached House

Poolway Place, Coleford

Barrow Drive, Berry Hill

3 Bedroom Semi-Detached House

Barrow Drive, Berry Hill

Worcester Walk, Broadwell, Coleford

3 Bedroom Semi-Detached House

Worcester Walk, Broadwell, Coleford

Croome Close, Lydney

3 Bedroom Semi-Detached House

Croome Close, Lydney

Campbell Road, Broadwell, Coleford

3 Bedroom Detached House

Campbell Road, Broadwell, Coleford

High Street, Coleford

House

High Street, Coleford


OPENING HOURS: Monday to Friday 8.30am to 7pm, Saturday 9am to 5.30pm

Newent Office
4 High Street
Newent
Gloucestershire
GL18 1AN

Sales
Tel:
01531 820844
newent@stevegooch.co.uk

Lettings
Tel:
01531 822829
lettings@stevegooch.co.uk

Coleford Office
1 High Street
Coleford
Gloucestershire
GL16 8HA

Tel: 01594 835566
coleford@stevegooch.co.uk

Mitcheldean Office
The Cross
Mitcheldean
Gloucestershire
GL17 0BP

Tel: 01594 542535
mitcheldean@stevegooch.co.uk

Gloucester Office
27 Windsor Drive
Tuffley
Gloucester
GL4 0QJ

Tel: 01452 505566
gloucester@stevegooch.co.uk

 
 

Update Cookies Preferences