Book a Property Valuation

Kimberley Close, Lydney

Price £300,000

Semi-Detached Bungalow

Overview

3 Bedroom Semi-Detached Bungalow for sale in Kimberley Close, Lydney

Key Features:

  • Three/ Four Bedroom Semi-Detached Bungalow
  • Situated In A Rarely Available Cul-De-Sac Location
  • Off-Road Parking And Large Garage/ Workshop
  • Brand New Roof with Scope To Modernise/Improve Inside
  • No Onward Chain
  • EPC Rating TBC, Council Tax Band C, Freehold

A THREE BEDROOM SEMI-DETACHED DORMER BUNGALOW situated in a quiet cul-de-sac on Kimberly Close. The property BENEFITS FROM BEING WITHIN WALKING DISTANCE TO LYDNEY TOWN CENTRE, ALONG WITH AMPLE OFF-ROAD PARKING. It features a LARGE GARAGE/WORKSHOP, A GOOD-SIZED REAR GARDEN, A LARGE LOUNGE, A SEPARATE DINING ROOM, AND A BRIGHT AND AIRY KITCHEN. Benefitting a BRAND NEW ROOF, THIS PROPERTY IS BEING SOLD WITH NO ONWARD CHAIN.

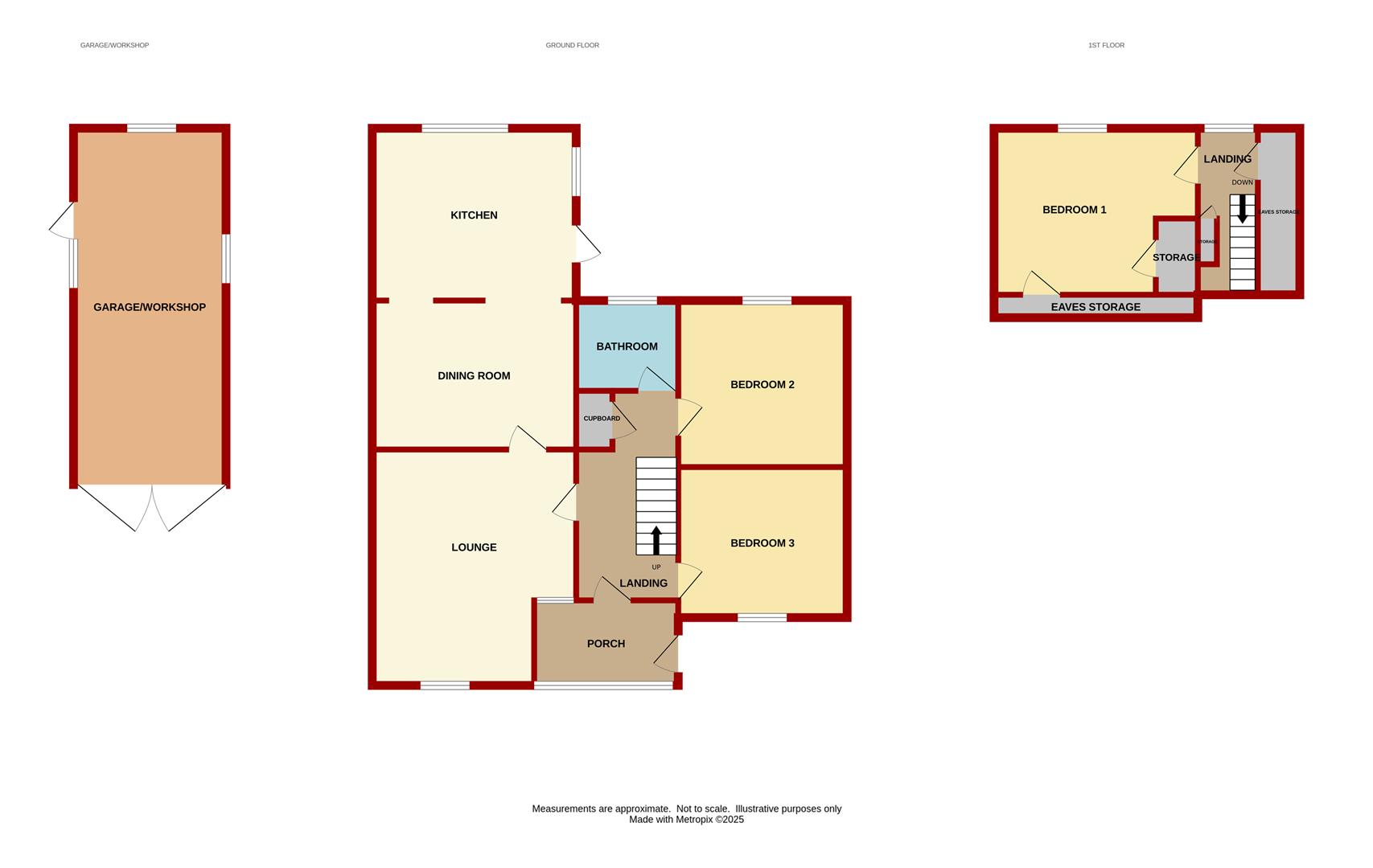
Property is accessed via a partly glazed frosted door into:

Porch - 2.59m x 1.68m (8'06 x 5'06) - Front aspect double glazed UPVC windows, wooden frosted door giving access into:

Entrance Hallway - Stairs to first floor landing, airing cupboard space housing a radiator, doors giving access into all rooms.

Bedroom 2 - 3.48m x 3.02m (11'05 x 9'11) - Rear aspect double glazed UPVC window, radiator, power points.

Bedroom 3 - 2.77m x 3.33m (9'01 x 10'11) - Front aspect double glazed UPVC window, radiator, power points.

Bathroom - 2.08m x 1.85m (6'10 x 6'01) - Rear aspect double glazed UPVC frosted window, close coupled WC, sink with tap over, panelled bath with bath taps over and a shower attachment above.

Lounge - 4.83m x 4.19m (15'10 x 13'09) - Front aspect double glazed UPVC window, feature gas fireplace with surround, radiator, power points.

Dining Room - 3.02m x 3.05m (9'11 x 10'00) - Worcester boiler, radiator, power points, archway giving access into:

Kitchen - 3.30m x 3.58m (10'10 x 11'09) - Rear and side aspect double glazed UPVC windows, a range of wall, drawer and base mounted units, space for washing machine, space for drier, power points, side aspect double glazed UPVC frosted door which gives access out to the garden.

From the hallway, stairs giving access up to landing space.

Landing - Large cupboard space which gives access to the eaves storage which is currently being used as a wardrobe space and has hanging and shelving options within, further eaves storage space, door giving access into:

Bedroom 1 - 4.11m x 3.30m (13'06 x 10'10) - Rear aspect double glazed UPVC window, eave storage space, radiator, power points.

Outside - To the front of the property there is off-road parking for several cars. There are a few steps leading up to the front door into the porch.

The rear garden there is a patio area, a raised patio area, a pathway, a laid to lawn area, pond, oil tank, garden shed. This is all surrounded by fencing.

Garage/ Workshop - 3.25m x 7.32m (10'08 x 24'00) - Accessed via two wooden doors. Power and lighting, side and rear aspect single glazed window.

Services - Oil, Water, Electricity and Drainage.

Mobile Phone Coverage/Broadband Availability - It is down to each individual purchaser to make their own enquiries. However, we have provided a useful link via Rightmove and Zoopla to assist you with the latest information. In Rightmove, this information can be found under the brochures section, see "Property and Area Information" link. In Zoopla, this information can be found via the Additional Links section, see "Property and Area Information" link.

Water Rates - Severn Trent - rates to be advised.

Local Authority - Council Tax Band: C
Forest of Dean District Council, Council Offices, High Street, Coleford, Glos. GL16 8HG.

Tenure - Freehold.

Viewings - Strictly through the Owners Selling Agent, Steve Gooch, who will be delighted to escort interested applicants to view if required. Office Opening Hours 8.30am - 7.00pm Monday to Friday, 9.00am - 5.30pm Saturday.

Directions - From Lydney High Street, head towards Newerne Street then turn right onto Hams Road and then immediately left onto Naas Lane. Turn left into Kimberly Drive and then left into Kimberly Close. The property can be found on the right hand side via our For Sale board.

Property Surveys - Qualified Chartered Surveyors (with over 20 years experience) available to undertake surveys (to include Mortgage Surveys/RICS Housebuyers Reports/Full Structural Surveys)

Read more
Sorry! An EPC is not available for this property.

Ridgeway Avenue, Berry Hill, Coleford

3 Bedroom Detached House

Ridgeway Avenue, Berry Hill, Coleford

Main Road, Pillowell, Lydney

2 Bedroom Cottage

Main Road, Pillowell, Lydney

Ridgeway Avenue, Berry Hill, Coleford

3 Bedroom Detached House

Ridgeway Avenue, Berry Hill, Coleford

Smithville Close, St. Briavels, Lydney

3 Bedroom Semi-Detached House

Smithville Close, St. Briavels, Lydney

Pine Crest Way, Bream

5 Bedroom Semi-Detached House

Pine Crest Way, Bream

Oak Meadow, Lydney

3 Bedroom Detached House

Oak Meadow, Lydney


OPENING HOURS: Monday to Friday 8.30am to 7pm, Saturday 9am to 5.30pm

Newent Office
4 High Street
Newent
Gloucestershire
GL18 1AN

Sales
Tel:
01531 820844
newent@stevegooch.co.uk

Lettings
Tel:
01531 822829
lettings@stevegooch.co.uk

Coleford Office
1 High Street
Coleford
Gloucestershire
GL16 8HA

Tel: 01594 835566
coleford@stevegooch.co.uk

Mitcheldean Office
The Cross
Mitcheldean
Gloucestershire
GL17 0BP

Tel: 01594 542535
mitcheldean@stevegooch.co.uk

Gloucester Office
27 Windsor Drive
Tuffley
Gloucester
GL4 0QJ

Tel: 01452 505566
gloucester@stevegooch.co.uk

 
 

Update Cookies Preferences