Book a Property Valuation

Camomile Green, Lydbrook

Guide Price £499,950

House

Overview

3 Bedroom House for sale in Camomile Green, Lydbrook

Key Features:

  • Three Bedroom Detached Forest Cottage
  • Rural Setting with Grounds Of Approximately 1.3 Acres
  • Enclosed Paddock With Two Access Points, Ample Off Road Parking
  • Flagstone Flooring, Fireplaces With Multi-Fuel Stove
  • En-Suite To The Principal Bedroom
  • EPC Rating- E, Council Tax- C, Freehold

Steve Gooch Estate Agents are delighted to offer for sale this THREE BEDROOM DETACHED FOREST COTTAGE, IN A RURAL SETTTING WITHIN GROUNDS OF APPROXIMATELY 1.3 ACRES. The property boasts a WEALTH OF CHARACTER AND CHARM, featuring FLAGSTONE FLOORING, FIREPLACES WITH MULTI-FUEL STOVES, and enjoys the benefit of DOUBLE GLAZING and CENTRAL HEATING. Externally, there is AMPLE OFF-ROAD PARKING, an ENCLOSED PADDOCK with TWO ACCESS POINTS, GENEROUS ENTERTAINING AND SEATING AREAS, all SURROUNDED BY WOODLAND WITH FAR-REACHING RURAL VIEWS.

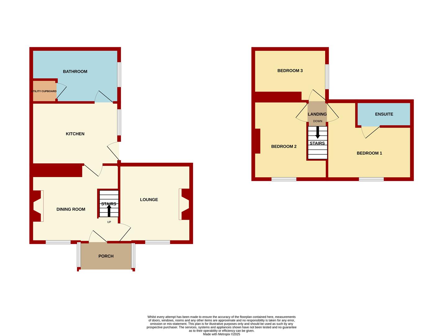
The property is approached via an oak-framed porch set on reclaimed brickwork with paved flooring. The entrance is enhanced by outside lighting and a security camera, leading to the front door which features an obscure glazed panel inset. From here, access is provided into the:

Dining Room - 3.58m x 3.58m (11'09 x 11'09) - Lovely open fireplace with stone lintel above, inset wood burning stove and slate heart, alcoves to either side with wall light points, flagstone flooring, ceiling light, central heating thermostat timer controls, power points, stairs leading to the first floor, understairs storage area, front aspect sealed unit double glazed window overlooking the front garden, solid timber door giving access into the:

Kitchen - 3.51m x 2.41m (11'06 x 7'11) - One and a half bowl single drainer stainless steel sink unit with monobloc mixer tap over, rolled edge worktops, range of base and wall mounted units, three wall mounted cupboards, tiled surround, power points, built-in four ring electric hob, electric oven beneath, space for undercounter fridge and freezer, space for slimline dishwasher, large opening suitable for an American style fridge/freezer, wood effect vinyl flooring, single radiator, directional ceiling spots, extractor hood, side aspect upvc double glazed window overlooking the side garden, obscure glazed panel door leading onto the side garden, solid timber door gives access into the:

Bathroom - 2.29m x 2.13m (7'06 x 7'00) - White suite with modern P shaped bath, taps over, mains fed shower, curved shower screen, tiled surround, close coupled w.c, pedestal wash hand basin with monobloc mixer tap over, tiled splashback, corner cupboard with slatted shelving and housing the domestic washing machine, ceiling light, access to roof space, radiator, side aspect obscure double glazed window, continuation of the wood effect vinyl flooring.

Lounge - 4.04m x 3.61m (13'03 x 11'10) - Ceilig light, wall light point, multi-fuel stove, polished slate hearth, tiled flooring, radiator, telephone point, power points, tv point, front aspect sealed unit double glazed window overlooking the front garden with views towards forest and woodland.

Stairs lead up to the first floor:

Landing - Solid timber doors leading into:

Bedroom One - 3.61m x 3.07m opening to 4.06m (11'10 x 10'01 open - Access to roof space, ceiling light, curved edge ceilings, power point, radiator, front aspect sealed unit double glazed window overlooking the front garden with views towards forest and woodland in the distance, solid timber door giving access into:

En-Suite - Close coupled w.c, pedestal wash hand basin with mixer tap, tiled splashback, large single shower cubicle with wet board surround, mains fed shower, wall mounted heated towel radiator, extractor fan, ceiling light.

Bedroom Two - 3.58m x 2.82m (11'09 x 9'03) - Access to roof space, two ceiling lights, single radiator, power points, over stairs alcove, front aspect sealed unit double glazed window with views towards woodland in the distance

Bedroom Three - 3.63m x 2.39m (11'11 x 7'10) - Sloping ceiling, wall light point, single radiator, wood effect laminate flooring, power points, side aspect upvc double glazed window overlooking the rear garden with views towards forest and woodland.

Parking - The property is approached via a pair of wooden gates opening onto a concrete driveway and parking area with space for 8-10 vehicles.

Outside - The driveway is flanked by flower borders, shrubs, bushes, and trees, with a large pond providing an attractive focal point.

From here, gated access leads to a paddock, set on sloping ground and enclosed by fencing and hedging. Steps and a gateway connect to a lower paddock, which includes a shed and workshop, along with further vehicle access from the bottom.

Additional features include outside lighting, a security camera, and an alarm system. A further pair of wooden gates provide access to additional driveway parking at the front of the property.

To the side, a decking area enclosed by large gabion walls creates an ideal space for entertaining. The garden is mainly laid to lawn, enclosed by fencing and hedging, with the benefit of outside power points. The property is served by an oil-fired central heating and domestic hot water boiler.

Directions - From the Mitcheldean office, proceed down to the mini roundabout, turning right onto the A4136. Proceed up over Plump Hill and upon reaching the traffic lights at Nailbridge, continue straight over signposted to Coleford. Continue along, taking the turning right at the Myrestock crossroads, signposted to Lydbrook. Proceed towards the village centre, passing a small industrial estate on the left hand side. The road will bear to the left, then to the right. Just after here on the left hand side, a turning will be signposted to Camomile Green. Turn left and as you reach the hairpin, take a small turning to the right where the property can be found after a short distance on the right hand side.

Services - Mains water, electricity. Septic tank. Oil

Mobile Phone Coverage / Broadband Availability - It is down to each individual purchaser to make their own enquiries. However, we have provided a useful link via Rightmove and Zoopla to assist you with the latest information. In Rightmove, this information can be found under the brochures section, see "Property and Area Information" link. In Zoopla, this information can be found via the Additional Links section, see "Property and Area Information" link.

Water Rates - Severn Trent Water Authority. Rate TBC.

Tenure - Freehold

Local Authority - Council Tax Band: B
Forest of Dean District Council, Council Offices, High Street, Coleford, Glos. GL16 8HG.

Money Laundering Regulations - To comply with Money Laundering Regulations, prospective purchasers will be asked to produce identification documentation at the time of making an offer. We ask for your cooperation in order that there is no delay in agreeing the sale, should your offer be acceptable to the seller(s)

Viewing - Strictly through the Owners Selling Agent, Steve Gooch, who will be delighted to escort interested applicants to view if required. Office Opening Hours 8.30am - 6.00pm Monday to Friday, 9.00am - 5.30pm Saturday.

Property Surveys - Qualified Chartered Surveyors (with over 20 years experience) available to undertake surveys (to include Mortgage Surveys/RICS Housebuyers Reports/Full Structural Surveys).

Read more

epc

Silver Birches, Ross-on-wye

4 Bedroom Detached House

Silver Birches, Ross-On-Wye

Central Lydbrook, Lydbrook

4 Bedroom Semi-Detached House

Central Lydbrook, Lydbrook

Forest Road, Ruardean Woodside, Ruardean

5 Bedroom Detached House

Forest Road, Ruardean Woodside, Ruardean

Church Hill, Lydbrook

4 Bedroom Detached House

Church Hill, Lydbrook

Farm Road, Ruardean Woodside, Ruardean

3 Bedroom Detached Bungalow

Farm Road, Ruardean Woodside, Ruardean

Flaxley Road, Mitcheldean

5 Bedroom Semi-Detached House

Flaxley Road, Mitcheldean


OPENING HOURS: Monday to Friday 8.30am to 7pm, Saturday 9am to 5.30pm

Newent Office
4 High Street
Newent
Gloucestershire
GL18 1AN

Sales
Tel:
01531 820844
newent@stevegooch.co.uk

Lettings
Tel:
01531 822829
lettings@stevegooch.co.uk

Coleford Office
1 High Street
Coleford
Gloucestershire
GL16 8HA

Tel: 01594 835566
coleford@stevegooch.co.uk

Mitcheldean Office
The Cross
Mitcheldean
Gloucestershire
GL17 0BP

Tel: 01594 542535
mitcheldean@stevegooch.co.uk

Gloucester Office
27 Windsor Drive
Tuffley
Gloucester
GL4 0QJ

Tel: 01452 505566
gloucester@stevegooch.co.uk

 
 

Update Cookies Preferences