Book a Property Valuation
SSTC

Coalway Road, Coalway, Coleford

Price £395,000

Detached Bungalow

Overview

3 Bedroom Detached Bungalow for sale in Coalway Road, Coalway, Coleford

Key Features:

  • Well Presented Three-Bedroom Detached Bungalow
  • Stunning Views Towards Bells Golf Course
  • Good Sized Rooms Throughout With Potential To Extend With Relevant Planning Permissions
  • Large Off-Road Parking
  • No Onward Chain
  • EPC Energy Rating C, Council Tax Band C, Freehold

Beautifully presented and striking three-bedroom detached bungalow, featuring breath-taking rear views overlooking Bells Golf Course. This exceptional property includes a versatile home office/gym, spacious rooms throughout, and the potential for expansion with relevant planning permissions to create a more substantial lounge area (planning ref number. P0730/19/FUL). With a generous off-road parking area and being offered with no onward chain.

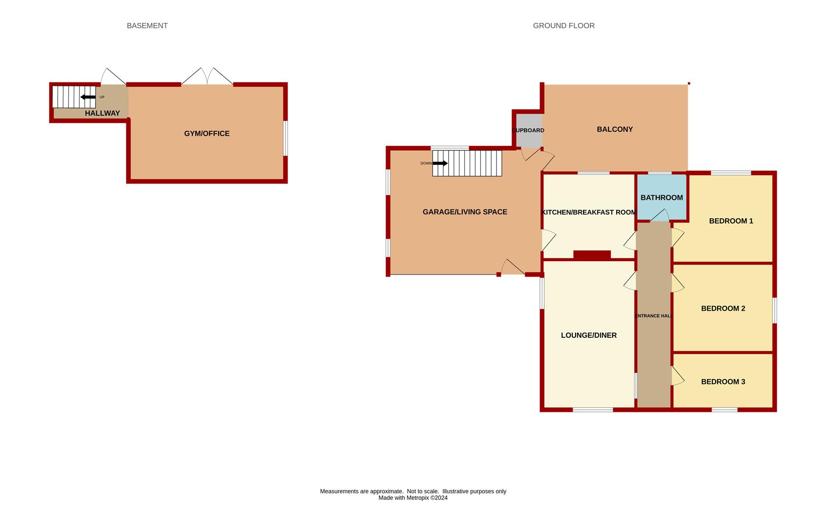
Property is accessed via partly glazed upvc door into:

Entrance Hallway - Power points, radiator, door giving access into:

Bedroom One - 3.33m x 3.07m (10'11 x 10'01) - Rear aspect double glazed upvc window, radiator, power points, tv point.

From the Entrance Hallway, door giving access into:

Bedroom Two - 3.33m x 3.20m (10'11 x 10'06) - Side aspect double glazed upvc window, radiator, power points, tv point.

From the Entrance Hallway, door giving access into:

Bedroom Three - 3.28m x 1.98m (10'09 x 6'06) - Front and side aspect double glazed upvc window, radiator, power points.

From the Entrance Hallway, door giving access into:

Lounge - 3.66m x 5.54m (12'00 x 18'02) - Front and side aspect double glazed upvc windows, radiator, power points, inset celling spotlights.

From the Entrance Hallway, door giving access into:

Bathroom - 1.88m x 1.63m (6'02 x 5'04) - Rear aspect double glazed upvc frosted window, close coupled wc, sink with tap over, panelled bath with bath taps over and a shower attachment above, fully tiled, extractor fan.

From the Entrance Hallway, door giving access into:

Kitchen - 3.61m x 3.05m (11'10 x 10'00) - Rear aspect double glazed upvc window giving beautiful rear aspect views, a range of wall, drawer and base mounted units, built in oven, built in hob with extractor fan, space for washing machine, space for under counter fridge/ freezer, space for fridge freezer, inset celling spotlights, breakfast bar, fuse box, one and a half bowl single drainer unit with mixer tap over. Side aspect double glazed upvc door which gives access out to:

Garage/ Living Space - 3.53m x 5.77m (11'07 x 18'11) - Front aspect double glazed upvc door (garage door is still available and could be re-exposed as a garage again as it's currently being used as a living space), two side aspect and one rear aspect double glazed upvc windows, stainless steel drainer sink unit with mixer tap over, power points, cupboard, side aspect frosted door which gives access out to a walled balcony which has potential to extend as gives stunning views over Bells Golf Course.

From the garage space, stairs which lead down to:

Gym/ Office - 5.99m x 3.71m (19'08 x 12'02) - Rear aspect double glazed upvc patio doors which give access out to the garden, side aspect double glazed upvc window, power points, front aspect double glazed upvc frosted door which gives access out to the garden.

Outside - To the front of the property there is a large driveway which has parking for several vehicles, side access down both sides of the property.

Rear Garden - Large laid to lawn area with stunning rear aspect views over the golf course, raised patio area, fully gated and surrounded by fencing and hedging.

Services - Mains Water. Electricity, Drainage, Gas.

Mobile Phone Coverage / Broadband Availability - It is down to each individual purchaser to make their own enquiries. However, we have provided a useful link via Rightmove and Zoopla to assist you with the latest information. In Rightmove, this information can be found under the brochures section, see "Property and Area Information" link. In Zoopla, this information can be found via the Additional Links section, see "Property and Area Information" link.

Water Rates - Severn Trent - rates to be advised.

Local Authority - Council Tax Band: C
Forest of Dean District Council, Council Offices, High Street, Coleford, Glos. GL16 8HG.

Tenure - Freehold.

Viewings - Strictly through the Owners Selling Agent, Steve Gooch, who will be delighted to escort interested applicants to view if required. Office Opening Hours 8.30am - 7.00pm Monday to Friday, 9.00am - 5.30pm Saturday.

Directions - From our Coleford Office turn right at the traffic lights signposted Lydney/Chepstow. Proceed along for a short distance turning left into Lords Hill then continue, the property can be found on the right hand side via a For Sale Board.

Property Surveys - Qualified Chartered Surveyors (with over 20 years experience) available to undertake surveys (to include Mortgage Surveys/RICS Housebuyers Reports/Full Structural Surveys)

Read more

epc

Laundry Lane, Newland

3 Bedroom Detached Bungalow

Laundry Lane, Newland

Crow Ash Road, Berry Hill, Coleford

3 Bedroom Detached Bungalow

Crow Ash Road, Berry Hill, Coleford

Campbell Road, Broadwell, Coleford

4 Bedroom Cottage

Campbell Road, Broadwell, Coleford

Grove Road, Christchurch, Coleford

2 Bedroom Detached Bungalow

Grove Road, Christchurch, Coleford

Woodland Road, Christchurch, Coleford

4 Bedroom Detached House

Woodland Road, Christchurch, Coleford

High Street, Clearwell, Coleford

3 Bedroom Semi-Detached House

High Street, Clearwell, Coleford


OPENING HOURS: Monday to Friday 8.30am to 7pm, Saturday 9am to 5.30pm

Newent Office
4 High Street
Newent
Gloucestershire
GL18 1AN

Sales
Tel:
01531 820844
newent@stevegooch.co.uk

Lettings
Tel:
01531 822829
lettings@stevegooch.co.uk

Coleford Office
1 High Street
Coleford
Gloucestershire
GL16 8HA

Tel: 01594 835566
coleford@stevegooch.co.uk

Mitcheldean Office
The Cross
Mitcheldean
Gloucestershire
GL17 0BP

Tel: 01594 542535
mitcheldean@stevegooch.co.uk

Gloucester Office
27 Windsor Drive
Tuffley
Gloucester
GL4 0QJ

Tel: 01452 505566
gloucester@stevegooch.co.uk

 
 

Update Cookies Preferences