Book a Property Valuation

Westerley Close, Cinderford

Guide Price £355,000

Detached House

Overview

3 Bedroom Detached House for sale in Westerley Close, Cinderford

Key Features:

  • Immaculately Presented Three Bedroom Detached House
  • Located In A Generous Corner Plot With Attractive Gardens
  • Gated Driveway Parking For Three Vehicles, Attached Garage
  • EPC Rating- C, Council Tax- D, Freehold

We are delighted to present for sale this BEAUTIFULLY MAINTAINED AND IMMACULATELY PRESENTED THREE-BEDROOM DETACHED HOME, SET ON A GENEROUS CORNER PLOT in the HIGHLY SOUGHT-AFTER WESTERLEY CLOSE. This spacious property features GATED DRIVEWAY PARKING FOR THREE VEHICLES, an ATTACHED GARAGE with electric door, UTILITY ROOM and WELL-TENDED, ATTRACTIVE GARDENS, all complemented by FAR-REACHING VIEWS toward the Welsh mountains.

Front aspect upvc door leads into;

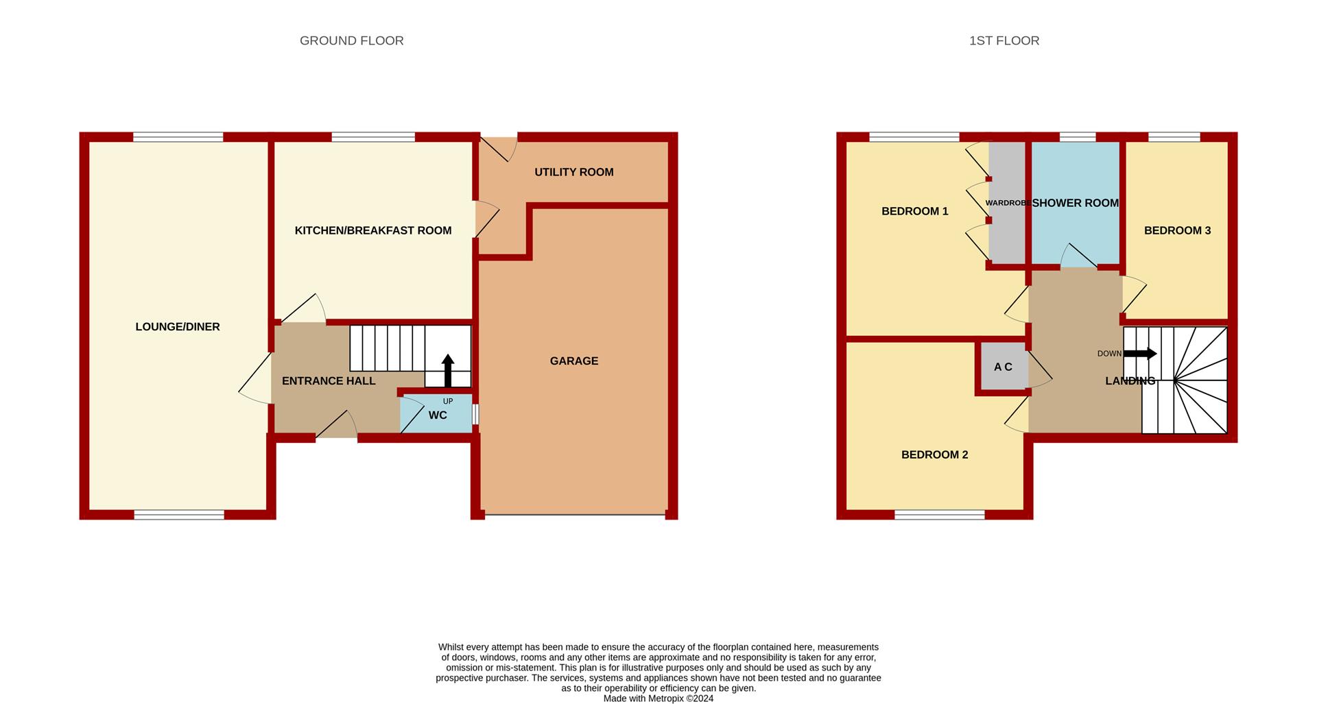
Entrance Hall - Radiator, hardwood flooring, smart central heating controls, doors lead off to the lounge/diner, kitchen/breakfast room and downstairs w.c.

Downstairs W.C - Low level w.c, wall mounted washbasin with tiled splashbacks, radiator, understairs storage space, obscured side aspect window looks into the garage.

Lounge/Diner - 6.68m x 3.33m (21'11 x 10'11) - A bright and spacious room with radiators, tv point, hardwood flooring, front and rear aspect windows.

Kitchen/Breakfast Room - 3.58m x 3.28m (11'09 x 10'09) - Modern fully fitted wall and base level units with laminate worktops and inset sink basin unit with drainer. Dual gas/electric range cooker with extractor hood above, integral fridge and dishwasher. Radiator, hardwood flooring, rear aspect window. Door into;

Utility Room - Fitted wall and base level units with laminate worktop and inset stainless steel sink basin unit with drainer. Space and plumbing for a washing machine, tumble dryer and fridge/freezer. Wall mounted gas -fired combi boiler, radiator, hardwood flooring, side aspect window and rear aspect upvc door to garden.

Landing - Airing cupboard, loft hatch to loft space, radiator, front aspect window, doors lead off to bedrooms one, two, three and shower room.

Bedroom One - 3.53m x 3.30m (11'07 x 10'10) - Built in triple wardrobe, radiator, rear aspect window with stunning views towards the Forest and Welsh mountains.

Bedroom Two - 3.30m x 3.05m (10'10 x 10'00) - Radiator, front aspect window.

Bedroom Three - 3.33m x 1.83m (10'11 x 6'00) - Radiator, rear aspect window with stunning views of the Forest and Welsh Mountains.

Shower Room - 2.26m x 1.65m (7'05 x 5'05) - Walk-in mains fed shower cubicle, low level w.c, vanity washbasin, heated towel rail, partly tiled walls, obscured rear aspect window.

Attached Garage - 5.31m x 3.43m (17'05 x 11'03) - Power up and over door, power and lighting, storage space above.

Outside - A pair of wrought iron gates lead on to a part tarmac, part gravel driveway suitable for three vehicles, this in turn leads to the attached garage. A path leads around the property and to the main covered entrance with security lighting.

The gardens are mostly situated to the front and right hand side of the house and are kept beautifully by the current owners. They comprise of lawns, patio seating areas, colourful flower and shrub borders and are an ideal space to relax.

Directions - From the Mitcheldean office, proceed down to the mini roundabout, turning right onto the A4136. Continue up over Plump Hill and upon reaching the Nailbridge traffic lights take the left turning signposted for Cinderford. Take the right turning onto Broadmoor Road, this turns into Forest Vale Road. Continue until reaching the roundabout, turning right onto Valley Road, proceed until reaching the T junctions at the end to St Whites Road and turn left. Proceed along, taking the left turning into Westerley Close where the property can be found after a short distance on the left.

Services - Mains water, drainage, electricity and gas.
Full Fibre and Openreach in area

Water Rates - Severn Trent Water Authority - Rate TBA

Local Authority - Council Tax Band: D
Forest of Dean District Council, Council Offices, High Street, Coleford, Glos. GL16 8HG.

Tenure - Freehold

Viewing - Strictly through the Owners Selling Agent, Steve Gooch, who will be delighted to escort interested applicants to view if required. Office Opening Hours 8.30am - 7.00pm Monday to Friday, 9.00am - 5.30pm Saturday.

Property Surveys - Qualified Chartered Surveyors (with over 20 years experience) available to undertake surveys (to include Mortgage Surveys/RICS Housebuyers Reports/Full Structural Surveys).

Money Laundering Regulations - To comply with Money Laundering Regulations, prospective purchasers will be asked to produce identification documentation at the time of making an offer. We ask for your cooperation in order that there is no delay in agreeing the sale, should your offer be acceptable to the seller(s)

Awaiting Vendor Approval - These details are yet to be approved by the vendor. Please contact the office for verified details.

Read more

epc

Morse Road, Drybrook

3 Bedroom Cottage

Morse Road, Drybrook

Steam Mills Road, Cinderford

3 Bedroom Semi-Detached House

Steam Mills Road, Cinderford

Stockwell Green, Cinderford

3 Bedroom Detached Bungalow

Stockwell Green, Cinderford

Cullimore View, Ruspidge, Cinderford

4 Bedroom House

Cullimore View, Ruspidge, Cinderford

Forest Edge, Drybrook

3 Bedroom Detached House

Forest Edge, Drybrook

The Pippins, Wilton, Ross-on-wye

3 Bedroom Detached Bungalow

The Pippins, Wilton, Ross-On-Wye


OPENING HOURS: Monday to Friday 8.30am to 7pm, Saturday 9am to 5.30pm

Newent Office
4 High Street
Newent
Gloucestershire
GL18 1AN

Sales
Tel:
01531 820844
newent@stevegooch.co.uk

Lettings
Tel:
01531 822829
lettings@stevegooch.co.uk

Coleford Office
1 High Street
Coleford
Gloucestershire
GL16 8HA

Tel: 01594 835566
coleford@stevegooch.co.uk

Mitcheldean Office
The Cross
Mitcheldean
Gloucestershire
GL17 0BP

Tel: 01594 542535
mitcheldean@stevegooch.co.uk

Gloucester Office
27 Windsor Drive
Tuffley
Gloucester
GL4 0QJ

Tel: 01452 505566
gloucester@stevegooch.co.uk

 
 

Update Cookies Preferences