Book a Property Valuation

Upper Lydbrook, Lydbrook

Guide Price £274,000

Cottage

Overview

3 Bedroom Cottage for sale in Upper Lydbrook, Lydbrook

Key Features:

  • Three/Four Bedroom Terraced Cottage
  • Spacious and Versatile Accommodation
  • Character Features
  • Courtyard Garden & Larger Garden Adjoining Woodland
  • EPC Rating- E
  • Council Tax- A, Freehold

We are delighted to offer for sale this CHARMING THREE/FOUR-BEDROOM TERRACED 19TH CENTURY COTTAGE, LOCATED IN THE HEART OF LYDBROOK IN THE BEAUTIFUL FOREST OF DEAN. The property offers DECEPTIVELY SPACIOUS AND VERSATILE ACCOMMODATION, retaining many CHARACTER FEATURES, including fireplaces and sash windows. There is a SMALL COURTYARD GARDEN THAT LEADS UP TO A LARGER LAWNED GARDEN, which ADJOINS WOODLAND, providing a tranquil outdoor space.

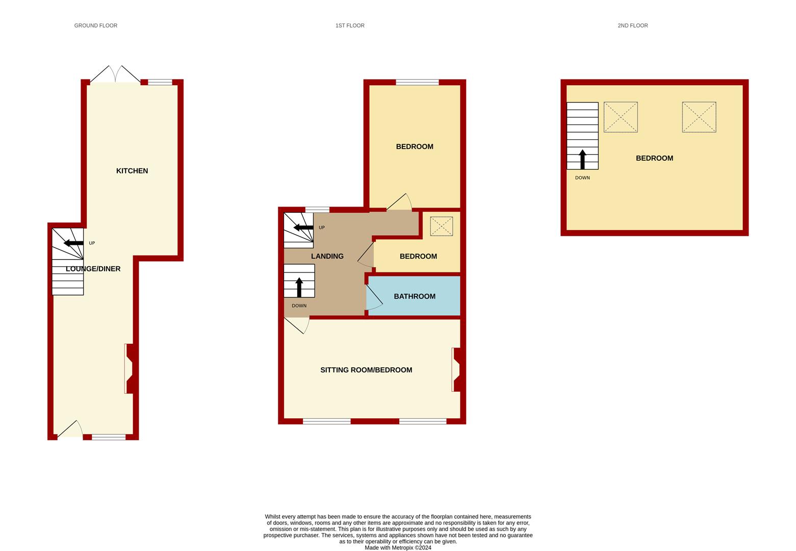
The property accommodation comprises LOUNGE/DINER and KITCHEN on the ground floor, SITTING ROOM/BEDROOM, TWO FURTHER BEDROOMS and BATHROOM on the first floor, FURTHER LARGE BEDROOM on the second floor.

Front aspect upvc door leads into;

Lounge/Diner - 6.32m x 2.54m (20'09 x 8'04) - Feature inglenook fireplace with stone hearth, radiator, laminate wood flooring, front aspect sash window, stairs lead to the first floor landing. Opens through to;

Kitchen - 5.26m x 2.90m (17'03 x 9'06) - Fitted wall and base level units with laminate worktops and a stainless steel sink unit with drainer. Stainless steel electric range oven with gas hob, space and plumbing for a washing machine, fridge and freezer. Radiators, quarry tiled floor, wall mounted gas-fired boiler, rear aspect window and patio doors lead out to the courtyard garden.

First Floor Landing - Radiator, rear aspect window, stairs lead to the second floor bedroom, doors lead off to sitting room/bedroom, two further bedrooms and bathroom.

Sitting Room/Bedroom - 5.44m x 3.10m (17'10 x 10'02) - Currently utilised as a sitting room however could be used as an additional spacious bedroom. Feature period cast iron fireplace on a slate hearth, radiator, two front aspect sash windows.

Bedroom One - 3.81m x 2.84m (12'06 x 9'04) - Rear aspect sash window.

Bedroom Two - 3.23m max x 2.36m max (10'07 max x 7'09 max) - Feature inglenook fireplace with inset cast iron grate, radiator, rear aspect skylight.

Bathroom - 3.02m x 1.65m (9'11 x 5'05) - White three piece suite comprising bath with electric shower over and tiled surround, low level w.c, pedestal handbasin, radiator, extractor.

Second Floor Bedroom - 5.28m x 5.26m (17'04 x 17'03) - Radiator, access to eaves storage, two rear aspect skylights.

Outside - A gate and low brick wall lead to a small front courtyard garden, providing access to the front door.

At the rear of the property is a private courtyard, accessible from the kitchen and ideal for relaxing. From here, there is a gated right of way across the rear of the neighbouring properties. A metal staircase leads up to a predominantly lawned garden, which features a large patio, a small shed, and attractive flower and shrub borders. The garden offers direct access to woodland, enhancing its peaceful setting.

Agents Note - Part of the property constitutes a flying freehold over a neighbouring property. Please seek financial advice if requiring a mortgage.

Services - Mains water, drainage, electricity and gas.

Openreach in area- not connected to property.

Water Rates - Severn Trent Water Authority - Rates to be confirmed

Local Authority - Council Tax Band: A
Forest of Dean District Council, Council Offices, High Street, Coleford, Glos. GL16 8HG.

Tenure - Freehold

Directions - From Mitcheldean proceed along the A4136 in the direction of Coleford, proceeding straight over the traffic lights at Nailbridge. Continue along for approximately 3 miles, turning right at the cross roads sign posted Lydbrook, proceed along this road where the property can then be found on the right hand side before the Church Road turning as signalled by our For Sale board.

Viewing - Strictly through the Owners Selling Agent, Steve Gooch, who will be delighted to escort interested applicants to view if required. Office Opening Hours 8.30am - 7.00pm Monday to Friday, 9.00am - 5.30pm Saturday.

Property Surveys - Qualified Chartered Surveyors (with over 20 years experience) available to undertake surveys (to include Mortgage Surveys/RICS Housebuyers Reports/Full Structural Surveys).

Money Laundering Regulations - To comply with Money Laundering Regulations, prospective purchasers will be asked to produce identification documentation at the time of making an offer. We ask for your cooperation in order that there is no delay in agreeing the sale, should your offer be acceptable to the seller(s)

Read more

epc

Colliers Field, Cinderford

3 Bedroom Semi-Detached House

Colliers Field, Cinderford

Drybrook Road, Drybrook

3 Bedroom Detached House

Drybrook Road, Drybrook

Morse Road, Drybrook, Mitcheldean

2 Bedroom Semi-Detached Bungalow

Morse Road, Drybrook, Mitcheldean

Proberts Barn Lane, Lydbrook

Farm Land

Proberts Barn Lane, Lydbrook

Hawthorns, Drybrook

4 Bedroom Detached House

Hawthorns, Drybrook

Forest Road, Ruardean Woodside, Ruardean

2 Bedroom Detached Bungalow

Forest Road, Ruardean Woodside, Ruardean


OPENING HOURS: Monday to Friday 8.30am to 7pm, Saturday 9am to 5.30pm

Newent Office
4 High Street
Newent
Gloucestershire
GL18 1AN

Sales
Tel:
01531 820844
newent@stevegooch.co.uk

Lettings
Tel:
01531 822829
lettings@stevegooch.co.uk

Coleford Office
1 High Street
Coleford
Gloucestershire
GL16 8HA

Tel: 01594 835566
coleford@stevegooch.co.uk

Mitcheldean Office
The Cross
Mitcheldean
Gloucestershire
GL17 0BP

Tel: 01594 542535
mitcheldean@stevegooch.co.uk

Gloucester Office
27 Windsor Drive
Tuffley
Gloucester
GL4 0QJ

Tel: 01452 505566
gloucester@stevegooch.co.uk

 
 

Update Cookies Preferences