Book a Property Valuation

Redmarley Road, Pendock

Guide Price £395,000

Plot

Overview

5 Bedroom Plot for sale in Redmarley Road, Pendock

Key Features:

  • Fantastic Opportunity to Acquire a Building Plot
  • PP to Erect a Five Bedroom Detached Family Home
  • Five En-Suites
  • Three Receptions
  • Double Garage, Plot of Approximately Half an Acre
  • EPC Rating - n/a, Council Tax - TBC, Freehold

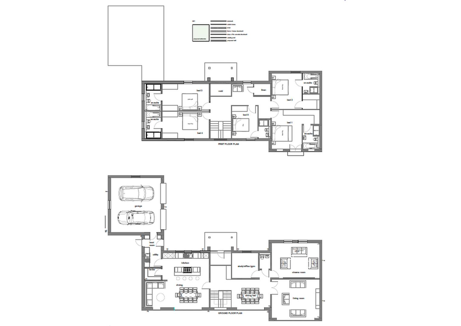
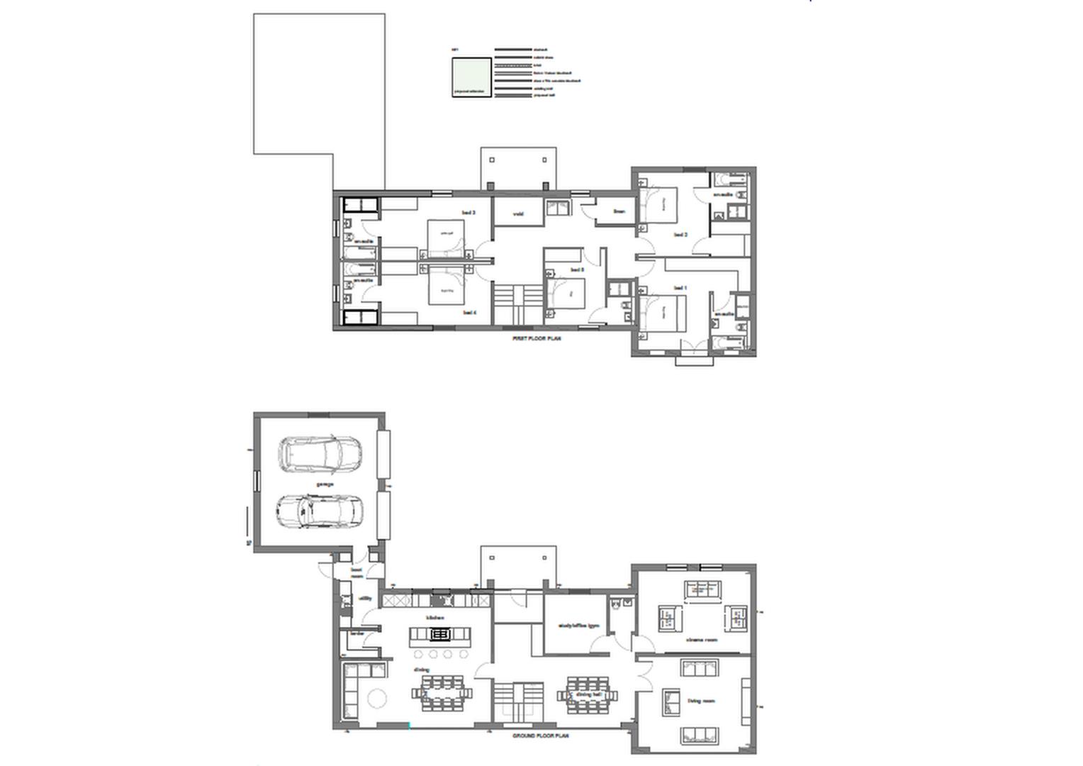
A FANTASTIC OPPORTUNITY TO ACQUIRE A BUILDING PLOT WITH PLANNING PERMISSION IN PLACE to erect a FIVE BEDROOM DETACHED FAMILY HOME with FIVE EN-SUITES, LARGE OPEN PLAN KITCHEN / BREAKFAST / FAMILY ROOM, THREE RECEPTIONS and a DOUBLE GARAGE situated in a PLOT of APPROXIMATELY HALF AN ACRE in a COUNTRYSIDE SETTING.

Building Plot - The plot amounts to approaching half an acre and is a level site.

Full planning permission is in place to erect a five bedroom detached house of approximately 3,500 sq ft plus a double garage.

The property will have five en-suite bedrooms, a large open plan kitchen / family / breakfast room plus three receptions.

Please see the Malvern Hills District Council Planning Portal reference - M25/0026T/TDC5 and M/23/01497/PIP.

Community Infrastructure Levy - The purchaser will be liable to pay £15,694.69 to the Malvern Hills District Council on commencement of development.

This charge has been levied under the Malvern Hills District Council CIL charging schedule and s211 of the Planning Act 2008.

Services - We believe mains water and electricity are on site. However, the in-going purchaser will need to make their own enquiries.

Mobile Phone Coverage / Broadband Availability - It is down to each individual purchaser to make their own enquiries. However, we have provided a useful link via Rightmove and Zoopla to assist you with the latest information. In Rightmove, this information can be found under the brochures section, see "Property and Area Information" link. In Zoopla, this information can be found via the Additional Links section, see "Property and Area Information" link.

Water Rates - Severn Trent - to be confirmed.

Local Authority - Forest of Dean District Council, Council Offices, High Street, Coleford, Glos. GL16 8HG.

Tenure - Freehold.

Viewing - Strictly through the Owners Selling Agent, Steve Gooch, who will be delighted to escort interested applicants to view if required. Office Opening Hours 8.30am - 7.00pm Monday to Friday, 9.00am - 5.30pm Saturday.

Directions - From the roundabout in Staunton, take the Pendock Road. Proceed into the village of Pendock, turning left at the cross roads, where the plot will be located after a few hundred yards on the left hand side as marked by our 'For Sale' board.

Property Surveys - Qualified Chartered Surveyors (with over 20 years experience) available to undertake surveys (to include Mortgage Surveys/RICS Housebuyers Reports/Full Structural Surveys).

Awaiting Vendor Approval - These details are yet to be approved by the vendor. Please contact the office for verified details.

Read more
Sorry! An EPC is not available for this property.

Peregrine Close, Newent

4 Bedroom Detached House

Peregrine Close, Newent

Long Field, Highnam

4 Bedroom Detached House

Long Field, Highnam

Upper Pendock, Malvern

3 Bedroom Barn Conversion

Upper Pendock, Malvern

Merlin Nook, Newent

4 Bedroom House

Merlin Nook, Newent

Kipling Road, Ledbury

4 Bedroom Detached House

Kipling Road, Ledbury

O'connor Close, Staunton

4 Bedroom Semi-Detached House

O'Connor Close, Staunton


OPENING HOURS: Monday to Friday 8.30am to 7pm, Saturday 9am to 5.30pm

Newent Office
4 High Street
Newent
Gloucestershire
GL18 1AN

Sales
Tel:
01531 820844
newent@stevegooch.co.uk

Lettings
Tel:
01531 822829
lettings@stevegooch.co.uk

Coleford Office
1 High Street
Coleford
Gloucestershire
GL16 8HA

Tel: 01594 835566
coleford@stevegooch.co.uk

Mitcheldean Office
The Cross
Mitcheldean
Gloucestershire
GL17 0BP

Tel: 01594 542535
mitcheldean@stevegooch.co.uk

Gloucester Office
27 Windsor Drive
Tuffley
Gloucester
GL4 0QJ

Tel: 01452 505566
gloucester@stevegooch.co.uk

 
 

Update Cookies Preferences