Book a Property Valuation

Smithville Close, St. Briavels, Lydney

Price £355,000

Semi-Detached House

Overview

3 Bedroom Semi-Detached House for sale in Smithville Close, St. Briavels, Lydney

Key Features:

  • . Extended Three Double Bedroom Home
  • . Impressive Kitchen / Diner / Living Space With Underfloor Heating
  • . Detached Garage With Workshop Facilities
  • . Landscaped And Private Gardens
  • . Popular Village Location
  • . EPC Rating TBC, Council Tax Band B, Freehold

BEAUTIFULLY PRESENTED AND EXTENDED THREE DOUBLE BEDROOM HOME finished to a HIGH STANDARD offering a STUNNING OPEN-PLAN KITCHEN / DINER / LIVING SPACE WITH UNDERFLOOR HEATING , DETACHED GARAGE, OFF-ROAD PARKING and LANDSCAPED, PRIVATE GARDENS, situated in the sought-after village of St Briavels.

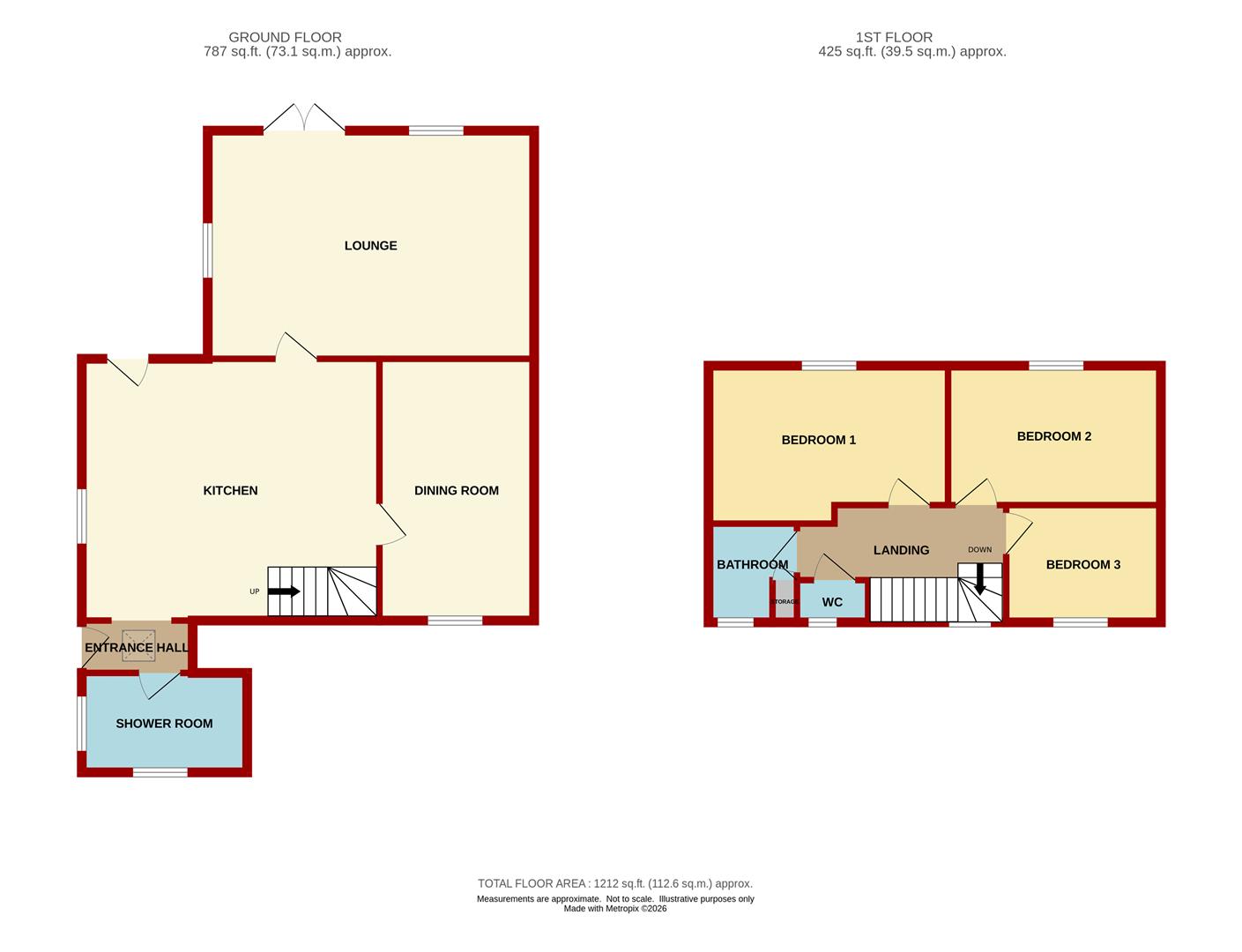
Entrance Hall - 2.03m x 0.97m (6'08 x 3'02) - Accessed via a partially double-glazed frosted uPVC door. Featuring tiled flooring, space for shoe and coat storage and a vaulted roof light. Door leading through to the shower room.

Shower Room - 3.05m x 1.83m (10'0 x 6'0) - Fitted with a walk-in shower enclosure with rainfall shower and tiled surround, low-level WC and vanity wash hand basin. Heated towel rail, electric radiator, fully tiled walls and floor and inset ceiling spotlights with PIR sensor. Front and side-facing double-glazed uPVC windows.

Kitchen/Diner/Living Space - 5.49m x 4.83m (18'00 x 15'10) - An impressive open-plan space fitted with a range of base, wall and drawer-mounted units with granite worktops and granite upstands. Belfast sink, integrated fridge, integrated dishwasher and range-style cooker. Central kitchen island with granite worktop and breakfast bar seating. Tiled flooring with underfloor heating, ample power and appliance points and space for a dining table or additional seating area. Understairs storage cupboard and stairs rising to the first floor. Door leading through to the dining room.

Dining Room - 4.83m x 2.84m (15'10 x 9'04) - Featuring radiator, power points, coving, feature fireplace and front-facing double-glazed uPVC window.

Lounge - 6.02m x 4.22m (19'09 x 13'10) - A spacious reception room with feature fireplace incorporating an inset multi-fuel stove. Radiators, power points, television points, coving and side and rear-facing double-glazed uPVC windows. Double doors opening directly onto the garden.

First Floor Landing - With power point, access to loft space and front-facing double-glazed uPVC window.

Bedroom One - 4.50m x 3.07m (14'09 x 10'01) - A generous double bedroom with radiator, power points, coving and rear-facing double-glazed uPVC window.

Bedroom Two - 3.05m x 2.57m (10'00 x 8'05) - Double bedroom with radiator, power points, coving and rear-facing double-glazed uPVC window.

Bedroom Three - 2.84m x 2.16m (9'04 x 7'01) - Featuring radiator, power points, coving and front-facing double-glazed uPVC window.

Bathroom - 2.08m x 1.63m (6'10 x 5'04) - Fitted with a white suite comprising panelled bath with electric shower over, pedestal wash hand basin and heated towel rail. Fully tiled walls and floor with inset ceiling spotlights. Door leading to airing cupboard.

Separate Wc - 1.32m x 0.79m (4'04 x 2'07) - Comprising low-level WC, radiator, fully tiled walls and floor and front-facing double-glazed uPVC window.

Outside - To the front of the property is gated access leading to the entrance porch and a selection of seating areas, including a patio and stone-chipped areas with space for table and chairs, overlooking the village green. The oil-fired combi boiler is also located externally.

Gated side access leads to a private, covered seating area with patio and outside power, previously housing a hot tub. A door provides access back into the kitchen, with a further gate leading to the rear garden.

The rear garden is fully enclosed and landscaped, predominantly laid to lawn with a surrounding concrete pathway and seating areas. Off-road parking is available for one vehicle with an external power point.

Detached Garage - 5.97m x 3.07m (19'07 x 10'01 ) - A substantial detached garage currently used as a workshop. Featuring an up-and-over door to the front, personal door to the rear, side-facing double-glazed uPVC window, loft storage above, wood-burning stove, Belfast sink with running water, plumbing for washing machine and tumble dryer, power and lighting.

Services - Mains water, electricity and drainage. Oil central heating.

Mobile Phone Coverage/Broadband Availability - It is down to each individual purchaser to make their own enquiries. However, we have provided a useful link via Rightmove and Zoopla to assist you with the latest information. In Rightmove, this information can be found under the brochures section, see "Property and Area Information" link. In Zoopla, this information can be found via the Additional Links section, see "Property and Area Information" link.

Water Rates - Severn Trent - rates to be advised.

Local Authority - Council Tax Band: B
Forest of Dean District Council, Council Offices, High Street, Coleford, Glos. GL16 8HG.

Tenure - Freehold.

Viewings - Strictly through the Owners Selling Agent, Steve Gooch, who will be delighted to escort interested applicants to view if required. Office Opening Hours 8.30am - 7.00pm Monday to Friday, 9.00am - 5.30pm Saturday.

Directions - From Coleford town centre proceed to the traffic lights and turn right signposted Lydney/Chepstow, continue along until reaching the traffic lights and proceed straight over. Proceed along this road for approximately three miles until reaching the village of St. Briavels turning left into Cross Keys then left again into Smithville Close and follow the road along where the property can be found set back on the right hand side via our for sale board.

Property Surveys - Qualified Chartered Surveyors (with over 20 years experience) available to undertake surveys (to include Mortgage Surveys/RICS Housebuyers Reports/Full Structural Surveys)

Awaiting Vendor Approval - These details are yet to be approved by the vendor. Please contact the office for verified details.

Read more
Sorry! An EPC is not available for this property.

Hillcrest Road, Berry Hill, Coleford

4 Bedroom Detached House

Hillcrest Road, Berry Hill, Coleford

Market Place, Coleford

4 Bedroom Mixed Use

Market Place, Coleford

Edenwall, Coalway, Coleford

3 Bedroom Cottage

Edenwall, Coalway, Coleford

High Street, St. Briavels, Lydney

3 Bedroom Semi-Detached House

High Street, St. Briavels, Lydney

Cadora Way, Coleford

4 Bedroom Townhouse

Cadora Way, Coleford

Speech House Road, Broadwell, Coleford

3 Bedroom Detached Bungalow

Speech House Road, Broadwell, Coleford


OPENING HOURS: Monday to Friday 8.30am to 7pm, Saturday 9am to 5.30pm

Newent Office
4 High Street
Newent
Gloucestershire
GL18 1AN

Sales
Tel:
01531 820844
newent@stevegooch.co.uk

Lettings
Tel:
01531 822829
lettings@stevegooch.co.uk

Coleford Office
1 High Street
Coleford
Gloucestershire
GL16 8HA

Tel: 01594 835566
coleford@stevegooch.co.uk

Mitcheldean Office
The Cross
Mitcheldean
Gloucestershire
GL17 0BP

Tel: 01594 542535
mitcheldean@stevegooch.co.uk

Gloucester Office
27 Windsor Drive
Tuffley
Gloucester
GL4 0QJ

Tel: 01452 505566
gloucester@stevegooch.co.uk

 
 

Update Cookies Preferences