Overview
6 Bedroom Detached Bungalow for sale in Chessgrove Lane, Longhope
Key Features:
- Six Bedroom Detached Chalet Bungalow
- Two Receptions
- Quarter of an Acre Plot, Popular Village of Longhope
- Stunning Panoramic Views towards May Hill
- Countryside Views, Solar Panels
- EPC Rating - TBC, Council Tax - E, Freehold
ARCHITECTURALLY DESIGNED SIX DOUBLE BEDROOM DETACHED CHALET BUNGALOW SET IN ONE QUARTER of an ACRE PLOT, AFFORDING STUNNING PANORAMIC VIEWS towards MAY HILL and surrounding COUNTRYSIDE. Benefitting from SOLAR PANELS and A SEMI-RURAL LOCATION WITHIN THE POPULAR village of LONGHOPE.
Access via composite double glazed front door with double glazed window into:
Entrance Porch - Through further glazed wooden door into:
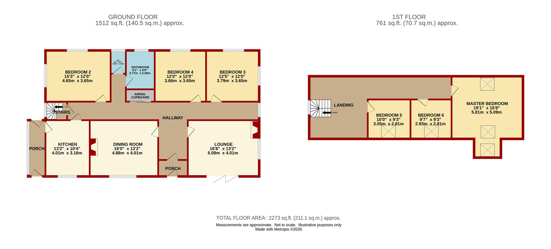
Entrance Hall - Steps up to inner hallway, three radiators, sliding doors to airing cupboard with shelving and storage space, exposed wooden floorboards, side aspect windows either end.
Lounge - 5.05m x 4.11m (16'7 x 13'06) - Large cast iron burner on a slate hearth with tiled surround, (hot water back burner), double radiator, side aspect window and front aspect bi-folding doors to raised patio area offering views towards May Hill.
Dining Room - 4.88m x 4.22m (16'0 x 13'10) - Exposed wooden floorboards, log burner with slate hearth and tiled surround, radiator, front aspect window offering May Hill views.
Kitchen - 3.96m x 2.97m (13'0 x 9'9) - Range of base and wall mounted units, marble worktops and splashbacks. Integrated appliances to include double oven, four ring hob with extractor fan over, tall fridge, induction hob, washing machine and dishwasher. Belfast sink unit with mixer tap, single radiator, side and front aspect windows, side aspect UPVC door.
Porch - 4.04m x 1.22m (13'3 x 4'0) - Side aspect windows, front and back doors to gardens.
Bedroom 2 - 4.47m x 3.86m (14'08 x 12'08) - Radiator, side and rear aspect windows.
Bedroom 3 - 3.76m x 3.78m (12'4 x 12'05) - Double radiator, side and rear aspect windows.
Bedroom 4 - 3.86mx 3.86m (12'08x 12'08) - Single radiator, rear aspect window.
Bathroom - 2.77m x 2.03m (9'1 x 6'8) - Walk in shower cubicle inset Mira detachable shower system, panelled bath, WC, wash hand basin, two chrome heated towel rails, tiled walls, rear aspect frosted window.
Wc - 1.60m x 0.84m (5'3 x 2'9) - Single radiator, WC, rear aspect frosted window.
GLAZED WOODEN DOOR AND TURNING STAIR CASE, LEADING TO FIRST FLOOR.
Landing - 4.19m x 3.76m (13'9 x 12'4 ) - Additional eaves storage space either side.
Master Bedroom - 5.05m x 4.17m (16'7 x 13'8 ) - Extending into 19' 07 into window seat area, two radiators, front and rear aspect Velux windows.
Bedroom 5 - 2.95m x 2.87m (9'8 x 9'5) - Radiator, front aspect Velux window.
Bedroom 6 - 2.95m x 2.87m (9'8 x 9'5) - Radiator, front aspect Velux window.
Outside - To the front of the property, there is a driveway suitable parking for four cars. The main garden is located to the front of the property with a flat lawned area, various mature trees planted, steps that lead to the front door of property with patio and composite decked areas with contemporary stainless steel wire balustrade. Below the deck is a further decked seating area with steps leading down to the garden. To the side of the property is an oil tank and a door that leads into a basement / storage room which houses the oil fired boiler. Further lawned area to the rear enclosed by fencing and hedging, a raised patio and a wooden built shed / workshop can also be found to the rear.
Garage - Access via electric roller door and pedestrian side door.
Services - Mains water, electricity, drainage and oil central heating.
Agent's Note - Solar panels are at the property. Please contact the office for further information.
Mobile Phone Coverage / Broadband Availability - It is down to each individual purchaser to make their own enquiries. However, we have provided a useful link via Rightmove and Zoopla to assist you with the latest information. In Rightmove, this information can be found under the brochures section, see "Property and Area Information" link. In Zoopla, this information can be found via the Additional Links section, see "Property and Area Information" link.
Water Rates - To be confirmed.
Local Authority - Council Tax Band: E
Forest of Dean District Council, Council Offices, High Street, Coleford, Glos. GL16 8HG.
Tenure - Freehold.
Viewing - Strictly through the Owners Selling Agent, Steve Gooch, who will be delighted to escort interested applicants to view if required. Office Opening Hours 8.30am - 7.00pm Monday to Friday, 9.00am - 5.30pm Saturday.
Directions - From the A40 coming from Gloucester continue along passing through the villages of Birdwood and Churcham. On reaching Huntley proceed past the Red Lion public house and at the next junction, turn left just before Forest Timber Products signposted Longhope. Continue along this road for approximately 1-2 miles and at the bottom of the hill turn right into Old Monmouth Road. Proceed along here for a short distance turning right into Church Road and again after a short distance turn left into Chessgrove Lane. Continue to where the property can be found on the left hand side as marked by our For Sale board.
Property Surveys - Qualified Chartered Surveyors (with over 20 years experience) available to undertake surveys (to include Mortgage Surveys/RICS Housebuyers Reports/Full Structural Surveys).
Awaiting Vendor Approval - These details are yet to be approved by the vendor. Please contact the office for verified details.
Read more