Book a Property Valuation

Marsh Hill, Sling, Coleford

Guide Price £800,000

Cottage

Overview

4 Bedroom Cottage for sale in Marsh Hill, Sling, Coleford

Key Features:

  • Beautifully Landscaped Grounds: Set within two-thirds of an acre of mature, landscaped gardens offering exceptional privacy and picturesque views.
  • Charming and Spacious Interior: A blend of classic charm and modern convenience, featuring four double bedrooms, two en-suite, and a spacious modern extension.
  • Versatile Living Spaces: Flexible accommodation allows the house to lend itself to multiple living situations.
  • Outdoor Amenities: The property boasts a double garage, stable block, kennels, a garden shed, a large woodstore, a greenhouse, and a decked area for outdoor enjoyment.
  • Convenient Location: Popular village location in the Forest of Dean, having all amenities in the nearby market town of Coleford, countryside on the doorstep and excellent commuter links.
  • EPC Rating D, Council Tax Band E, Freehold

AN EXCEPTIONAL BLEND OF CLASSIC CHARM AND MODERN CONVENIENCE IN THIS STUNNING FOUR DOUBLE BEDROOM COTTAGE ON THE EDGE OF SLING VILLAGE. WITH TWO EN-SUITE BEDROOMS AND A SPACIOUS MODERN EXTENSION, THIS HOME OFFERS FLEXIBLE LIVING ARRANGEMENTS TO SUIT YOUR LIFESTYLE.

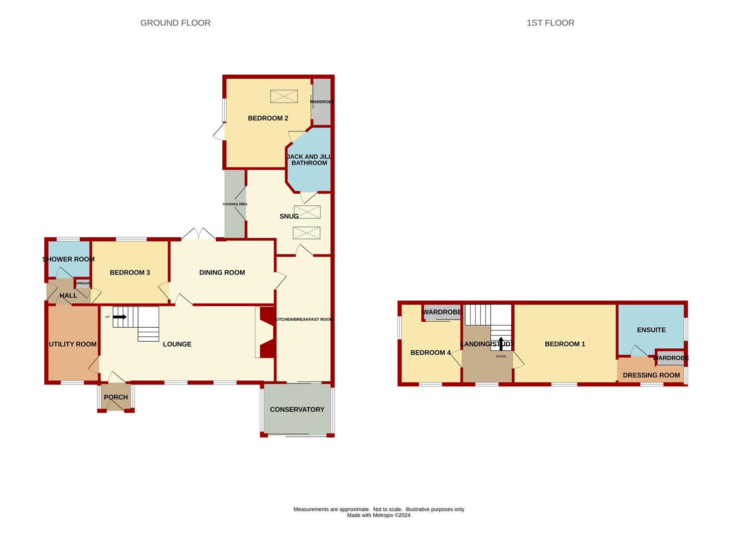
Entrance Porch - Accessed via a wooden door, space for boot storage, front and side aspect windows, door to:

Lounge - 6.12m x 3.43m (20'01 x 11'03) - Inglenook fireplace made with stone from Clearwell Quarry with feature bread oven, solid wooden mantel and inset Jotul 6 multi fuel burner burner which can also be used as an open fire, stone tiled flooring, old original staircase creating a lovely feature to the room, understairs storage cupboard, power points, two radiators, television point, stairs to the first floor landing, front aspect double glazed upvc windows, thumb latch door to:

Dining Room - 4.60m x 2.97m (15'01 x 9'09) - Radiator, power points, double glazed upvc double doors which lead out onto the decked seating area, there is also a thumb latch door to bedroom 3 and thumb latch door to:

Kitchen - 5.84m x 2.49m (19'02 x 8'02) - A range of base, drawer and wall mounted units, rolled edge worktops, one and a half bowl single drainer stainless steel sink unit with mixer tap above, integrated appliances to include double ovens and warming drawer, space for microwave, space for two fridge/freezers, five ring Neff hob with extractor fan above, curved breakfast bar wrapping around the rear of the bread oven from the inglenook fireplace in the lounge with space for seating below, radiators, space and plumbing for dishwasher, double doors to a larder storage cupboard, power points, partly tiled walls, side aspect double glazed upvc window, front aspect double glazed upvc sliding doors to:

Conservatory - 3.05m x 2.29m (10'0 x 7'06) - Front and side aspect double glazed upvc windows, front aspect double glazed upvc sliding doors out onto the front patio.

Utility Room - 3.38m x 2.29m (11'01 x 7'06) - A range of base, drawer and wall mounted units, rolled edge worktops, one and a half bowl single drainer stainless steel sink unit with mixer tap above, space and plumbing for washing machine, space for tumble dryer, gas fired Worcester boiler, power points, partly tiled walls, front and side aspect double glazed upvc windows, thumb latch door to:

Rear Hall - 1.93m x 1.14m (6'04 x 3'09) - Radiator, storage cupboards, side aspect double glazed frosted door giving access out to the side of the property, door to:

Shower Room - 1.96m x 1.68m (6'05 x 5'06) - Can serve as an en-suite to Bedroom 3. Corner shower enclosure with mains shower over, vanity wash hand basin, low level WC, heated towel rail, tiled walls, tiled flooring, inset ceiling spotlights, rear aspect double glazed upvc window.

Bedroom 3 - 3.40m x 2.97m (11'02 x 9'09) - Radiator, power points, rear aspect double glazed upvc window, thumb latch door to dining room and also a door to rear hall.

FROM THE KITCHEN A STABLE DOOR GIVES ACCESS TO:

Snug - 3.76m x 3.76m (12'04 x 12'04) - Accessed via stable door from the Kitchen. This room was built and designed as a separate annexe in conjunction with bedroom two for a relative, however is now seamlessly integrated by the current owners as part of their main living accommodation. Radiators, power points, television point, two Velux windows with fly screens and blinds, door to shower room, side aspect double glazed upvc double doors out to the decked area, thumb latch door to:

Bedroom 2 - 3.33m x 3.30m (10'11 x 10'10) - Radiators, power points, Velux window with fly screen and blackout blind, mirror fronted sliding built in wardrobes, side aspect double glazed upvc window, side aspect double glazed upvc door out onto the decked area, thumb latch door to:

Jack And Jill Shower Room - 2.57m x 2.26m (8'05 x 7'05) - Shower enclosure with mains shower over, low level WC, pedestal wash hand basin, heated towel rail, partly tiled walls, Velux window with fly screen and blackout blind.

FROM THE LOUNGE, STAIRS LEAD TO THE FIRST FLOOR:

Landing/Study - 3.53m x 2.24m (11'07 x 7'04) - Power points, space for desk and chair, front aspect double glazed upvc window, thumb latch doors to bedrooms 1 and 4:

Bedroom 1 - 4.50m x 3.53m (14'09 x 11'07) - Radiator, power points, front aspect double glazed upvc window, steps up to:

Dressing Area - 3.00m x 1.40m (9'10 x 4'07) - Power points, built in wardrobe, inset ceiling spotlights, front and side aspect double glazed upvc windows, thumb latch door to:

En-Suite - 3.00m x 2.41m (9'10 x 7'11) - Shower enclosure with mains shower over, low level WC, two sinks, heated towel rail, tiled walls, tiled flooring, inset ceiling spotlights, access to loft space, side aspect double glazed upvc window.

Bedroom 4 - 3.53m x 2.69m (11'07 x 8'10) - Radiator, power points, bult in wardrobes, front and side aspect double glazed upvc window.

Outside - The property is accessed via a track owned by the Forestry Commission, to which the property has full rights, providing a wealth of parking. The track leads to a detached double garage, from where two pedestrian gates provide entry to the grounds. One of these gates opens to a charming tree-lined walkway bordered by a low stone wall adorned with trailing bellflowers.

The extremely private, south-facing front garden boasts a large lawn with a sunny patio area for seating and dining, as well as the cooling shade of two ancient yew trees and a venerable oak tree. Nestled under these trees is an attractive stumpery, thoughtfully created by the current owners. The entire front garden has been dog proofed. A pathway meanders from the front door around the property, passing a delightful herb and flower garden that leads to the main rear garden.

The rear garden is predominantly laid to lawn, interspersed with a variety of mature trees, including a winter garden and fruit trees such as forest plums, apples, and black cherries. Notably, none of the trees are subject to preservation orders, allowing the new owners to retain the garden's privacy or to modify it as desired.

The property also features an array of outbuildings, including a stable block with two stables, three kennels with both a gated and a grass run, a garden shed, a large woodstore, and a greenhouse. A wonderful decked area, accessible from the dining room, snug, and bedroom two, provides a perfect spot to overlook the garden and enjoy your own slice of heaven.

Services - Mains water, electricity, gas and drainage.

Water Rates - Severn Trent - to be confirmed.

Local Authority - Council Tax Band: E
Forest of Dean District Council, Council Offices, High Street, Coleford, Glos. GL16 8HG.

Tenure - Freehold.

Viewings - Strictly through the Owners Selling Agent, Steve Gooch, who will be delighted to escort interested applicants to view if required. Office Opening Hours 8.30am - 7.00pm Monday to Friday, 9.00am - 5.30pm Saturday.

Directions - The entrance to the access driveway can be found at what3words: ///worlds.villas.width

At the end of the track there is a parking area in front of the double garage and also turning space.

Property Surveys - Qualified Chartered Surveyors (with over 20 years experience) available to undertake surveys (to include Mortgage Surveys/RICS Housebuyers Reports/Full Structural Surveys)

Awaiting Vendor Approval - These details are yet to be approved by the vendor. Please contact the office for verified details.

Read more

epc

St. Briavels, Lydney

4 Bedroom Detached House

St. Briavels, Lydney

Joyford Hill, Coleford

5 Bedroom Detached Bungalow

Joyford Hill, Coleford

Brockhollands, Bream, Lydney

6 Bedroom Detached House

Brockhollands, Bream, Lydney

Redbrook Road, Upper Redbrook

6 Bedroom Detached House

Redbrook Road, Upper Redbrook

Redbrook Road, Upper Redbrook

7 Bedroom Guest House

Redbrook Road, Upper Redbrook


OPENING HOURS: Monday to Friday 8.30am to 7pm, Saturday 9am to 5.30pm

Newent Office
4 High Street
Newent
Gloucestershire
GL18 1AN

Sales
Tel:
01531 820844
newent@stevegooch.co.uk

Lettings
Tel:
01531 822829
lettings@stevegooch.co.uk

Coleford Office
1 High Street
Coleford
Gloucestershire
GL16 8HA

Tel: 01594 835566
coleford@stevegooch.co.uk

Mitcheldean Office
The Cross
Mitcheldean
Gloucestershire
GL17 0BP

Tel: 01594 542535
mitcheldean@stevegooch.co.uk

Gloucester Office
27 Windsor Drive
Tuffley
Gloucester
GL4 0QJ

Tel: 01452 505566
gloucester@stevegooch.co.uk

 
 

Update Cookies Preferences