Book a Property Valuation

Gorsley, Ross-On-Wye

Guide Price £1,150,000

Detached House

Overview

5 Bedroom Detached House for sale in Gorsley, Ross-On-Wye

Key Features:

  • Five Bedroom Detached Brand New Family Home
  • Exceptional Eco Credentials, High Specification Finishes
  • Open Plan Kitchen / Dining / Family Room
  • Separate Sitting Room plus Study, Master En-Suite with Dressing Room, Two Further En-Suites
  • Double Garage, 10 Year Build Zone Warranty
  • Village Location
  • Low Maintenance, Low Running Costs
  • EPC Predicted Rating - A, Council Tax - TBC, Freehold

A FIVE BEDROOM DETACHED BRAND NEW FAMILY HOME boasting EXCEPTIONAL ECO CREDENTIALS and HIGH SPECIFICATION FINISHES, OPEN PLAN KITCHEN / DINING / FAMILY ROOM plus SITTING ROOM AND STUDY, MASTER EN-SUITE with DRESSING ROOM, TWO FURTHER EN-SUITES, DOUBLE GARAGE and OFF ROAD PARKING,10 YEAR BUILD ZONE WARRANTY, situated in a SELECT AND EXCLUSIVE DEVELOPMENT OF JUST NINE CONTEMPORARY FAMILY HOMES.

The Specification - Lovers Walk has been designed with the environment in mind. Each home has an exacting specification to provide the highest level of luxurious living and superior craftsmanship.

Eco Friendly Features - The eco-friendly features that come as standard on each home includes:

. 8kw solar panels on the roof to provide a substantial amount of your energy needs.
. Panasonic Source Heat Pump giving you a free renewable source of energy to aid the heating system.
. High levels of insulation and air tightness meaning less energy is required to heat your home.
. A whole-house ventilation and heat recovery system (MVHR) providing fresh filtered air into the house continuously, as well as taking heat from the air of bathrooms and kitchens when in use and distributing it to other areas of the house.
. Low maintenance cedar larch cladding.
. Smart aluminium double glazing Euro wood burning stove.

Additional Features - . Wet under floor heating to the ground floor.
. Carpets to the lounge, study and first floor.
. Bi-fold doors.

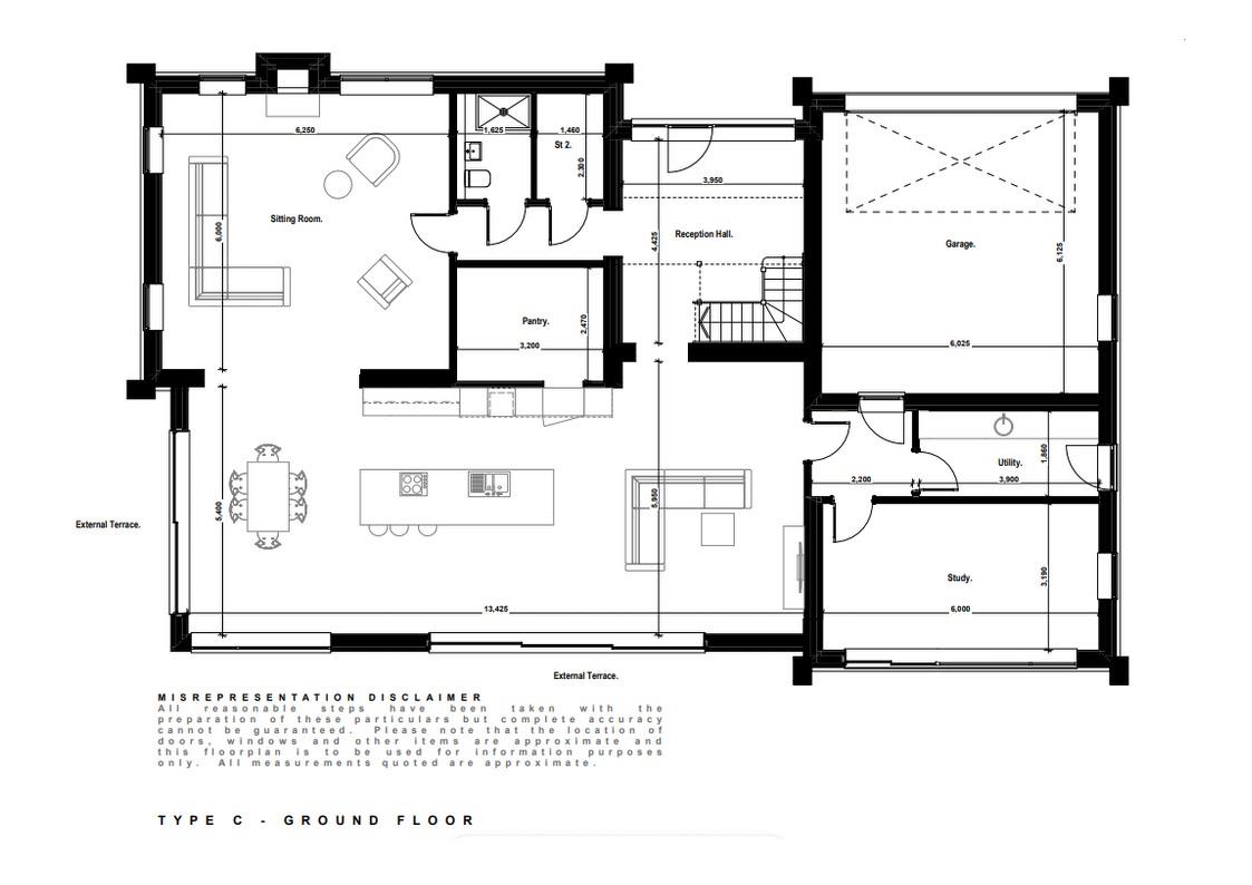
Reception Hall - 4.42 x 3.95 (14'6" x 12'11") -

Kitchen / Dining / Family Room - 13.42 x 5.40 (44'0" x 17'8") - High quality kitchen.
. Quartz worktops.
. Two full sized NEFF fridge / freezers.
. Siemens warming drawer.
. Siemens microwave oven.
. Siemens oven.
. Siemens five ring induction hob.
. Siemens extractor.
. NEFF dishwasher
. Mixer tap and one and a half bowl sink.
. Downlights.

Utility - 0.91m.2.74m x 56.69m (3.9 x 186) -

Sitting Room - 6.25 x 6.00 (20'6" x 19'8") -

Study - 6.00 x 3.19 (19'8" x 10'5") -

Shower Room - 2.30 x 1.62 (7'6" x 5'3") -

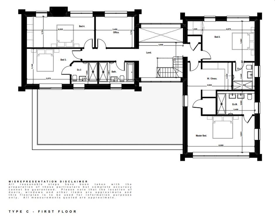
Landing -

Master Bedroom - 6.00 x 3.26 (19'8" x 10'8") -

Dressing Room - 3.92 x 2.44 (12'10" x 8'0") -

En-Suite - 3.40 x 2.03 (11'1" x 6'7") -

Bedroom 2 - 4.67 x 3.56 (15'3" x 11'8") -

En-Suite - 2.44 x 1.96 (8'0" x 6'5") -

Bedroom 3 - 3.87 x 3.14 (12'8" x 10'3") -

En-Suite - 2.33 x 1.98 (7'7" x 6'5") -

Bedroom 4 - 6.03 x 2.78 (19'9" x 9'1") -

Bathroom - 3.17 x 1.95 (10'4" x 6'4") -

Bedroom 5 - 3.45 x 2.74 (11'3" x 8'11") -

Outside - . Outside power point.
. Glass canopy.
. Private block paved driveways.
. Seeded lawn.
. Porcelain and sandstone patio.

Garage - 6.12 x 6.02 (20'0" x 19'9") - Electrically operated insulated garage door with internal power and lighting.

Builders Warranty - 10 year Build-Zone warranty.

Agent's Note - Other properties are available and subject to the build stage buyers can have an input on kitchen colours / flooring etc. Call the office to discuss further.

Plot 1 - �899,950
Plot 2 - SOLD
Plot 3 - SSTC
Plot 4 - �799,950
Plot 5 - SOLD
Plot 6 - SSTC
Plot 8 - �899,950
Plot 9 - �899,950

Services - Mains water and electric, private drainage system, air source heat pump.

Water Rates - Severn Trent - to be confirmed.

Local Authority - Council Tax Band: TBC
Herefordshire Council, Plough Lane, Hereford, HR4 0LE.

Tenure - Freehold.

Viewing - Strictly through the Owners Selling Agent, Steve Gooch, who will be delighted to escort interested applicants to view if required. Office Opening Hours 8.30am - 7.00pm Monday to Friday, 9.00am - 5.30pm Saturday.

Directions - From Newent, proceed along the B4221 into Gorsley and the entrance to Lovers Walk will be found on your left hand side, as marked by our 'For Sale' board.

Property Surveys - Qualified Chartered Surveyors (with over 20 years experience) available to undertake surveys (to include Mortgage Surveys/RICS Housebuyers Reports/Full Structural Surveys).

Awaiting Vendor Approval - These details are yet to be approved by the vendor. Please contact the office for verified details.

Read more

epc

Kilcot, Newent

5 Bedroom Detached House

Kilcot, Newent

Strawberry Hill, Newent

Commercial Property

Strawberry Hill, Newent

Castle Tump, Newent

3 Bedroom Detached House

Castle Tump, Newent

Gorsley, Ross-on-wye

5 Bedroom Detached House

Gorsley, Ross-On-Wye

Taynton, Gloucestershire

5 Bedroom Detached House

Taynton, Gloucestershire


OPENING HOURS: Monday to Friday 8.30am to 7pm, Saturday 9am to 5.30pm

Newent Office
4 High Street
Newent
Gloucestershire
GL18 1AN

Sales
Tel:
01531 820844
newent@stevegooch.co.uk

Lettings
Tel:
01531 822829
lettings@stevegooch.co.uk

Coleford Office
1 High Street
Coleford
Gloucestershire
GL16 8HA

Tel: 01594 835566
coleford@stevegooch.co.uk

Mitcheldean Office
The Cross
Mitcheldean
Gloucestershire
GL17 0BP

Tel: 01594 542535
mitcheldean@stevegooch.co.uk

Gloucester Office
27 Windsor Drive
Tuffley
Gloucester
GL4 0QJ

Tel: 01452 505566
gloucester@stevegooch.co.uk

 
 

Update Cookies Preferences