Book a Property Valuation

Denbigh Road, Cheltenham

Price £125,000

Plot

Overview

Plot for sale in Denbigh Road, Cheltenham

Key Features:

  • A Fantastic Opportunity To Purchase A Rarely Available Building Plot
  • For A Desirable Detached Three Bedroom Family Home Spanning Over 1200sqft
  • Arranged Over Three Floors, Spacious Entrance Hall, Cloakroom
  • Open Plan Living/Dining/Kitchen Area With Featured Glazed Doors Onto The Private Rear Garden
  • Master Bedroom On The Second Floor With Velux Roof Lights
  • Off Road Parking, Enclosed Private Rear Garden

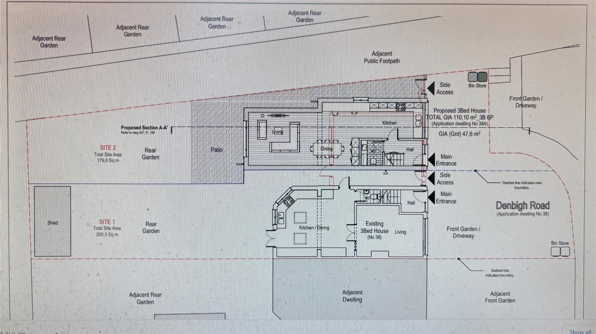
A FANTASTIC OPPORTUNITY to purchase a RARELY AVAILABLE BUILDING PLOT for a DESIRABLE DETACHED THREE BEDROOM FAMILY HOME spanning over 1200sqft in this desirable location.

The accommodation is arranged over three floors and comprises spacious entrance hall, cloakroom, open plan living/dining/kitchen area with featured glazed doors onto the private rear gardens. To the first floor are two double bedrooms and family bathroom with the master being located on the second floor with Velux roof lights, storage cupboard and eves storage.

The property will also benefit from OFF ROAD PARKING and an ENCLOSED REAR GARDEN.

We believe that the future value of the property once completed would be in the region of ?425,000 depending on the specification.

Cheltenham is a town in Gloucestershire, home to the renowned Cheltenham Festival, 4 days of horse jump racing culminating in the Gold Cup, held annually in March at Cheltenham Racecourse. It's also known for Regency buildings, including the Pittville Pump Room, a remnant of Cheltenham's past as a spa town. There's fine art at The Wilson museum, and the Victorian Everyman Theatre has an ornate auditorium.

Planning Reference Number - 21/00916/FUL

Additional Information - There is a CIL Payment (Community Infrastructure Levy) of ?12,259.00.

The drainage costs are estimated at ?15,000.

Directions - At the Arle Court roundabout that the 4th exit into Hatherley Lane then take the 1st exit and stay on Hatherley Lane. Turn left into Caernarvon Road left into Denbigh Road where the plot can be found on the right hand side.

Agents Note - Please note, the main images are an artists impression of the finished product.

Read more
Sorry! There are no available floor plans for this property.
Sorry! An EPC is not available for this property.

Tredworth Road, Gloucester

4 Bedroom End of Terrace House

Tredworth Road, Gloucester

Overbrook Road, Hardwicke, Gloucester

1 Bedroom Apartment

Overbrook Road, Hardwicke, Gloucester

Staverton Park, Staverton, Cheltenham

2 Bedroom Park Home

Staverton Park, Staverton, Cheltenham

Kiln Close, Gloucester

1 Bedroom Flat

Kiln Close, Gloucester

Thoresby Avenue, Tuffley, Gloucester

Plot

Thoresby Avenue, Tuffley, Gloucester

Harescombe Drive, Gloucester

2 Bedroom Maisonette

Harescombe Drive, Gloucester


OPENING HOURS: Monday to Friday 8.30am to 7pm, Saturday 9am to 5.30pm

Newent Office
4 High Street
Newent
Gloucestershire
GL18 1AN

Sales
Tel:
01531 820844
newent@stevegooch.co.uk

Lettings
Tel:
01531 822829
lettings@stevegooch.co.uk

Coleford Office
1 High Street
Coleford
Gloucestershire
GL16 8HA

Tel: 01594 835566
coleford@stevegooch.co.uk

Mitcheldean Office
The Cross
Mitcheldean
Gloucestershire
GL17 0BP

Tel: 01594 542535
mitcheldean@stevegooch.co.uk

Gloucester Office
27 Windsor Drive
Tuffley
Gloucester
GL4 0QJ

Tel: 01452 505566
gloucester@stevegooch.co.uk

 
 

Update Cookies Preferences